Mieszkanie 47,71 m², Szczecin











mieszkanie • na sprzedaż • rynek pierwotny • Szczecin • Centrum
476 640 zł
• 47,71 m²
9 990 zł za m2
9 990 zł za m2
2 pokoje • 1 łazienka • 5 piętro • budynek 5 piętrowy • Rok budowy: 2026
Kontakt
Oferuję na sprzedaż funkcjonalne i nowoczesne mieszkanie powstałe w wyniku adaptacji poddasza, zlokalizowane w samym centrum miasta. Nieruchomość znajduje się na 5. piętrze w 5-piętrowej, zabytkowej kamienicy.
To doskonała lokalizacja - w zasięgu kilku kroków dostępna jest pełna infrastruktura: restauracje, sklepy, szkoły oraz komunikacja miejska.
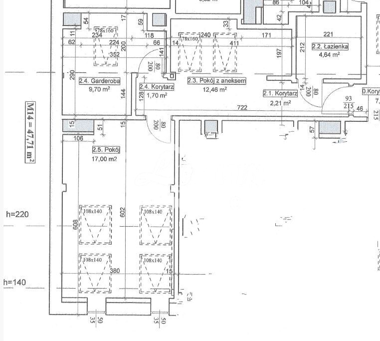
Układ mieszkania:
Pokój z aneksem kuchennym
sypialnia
garderoba
łazienka z WC
korytarz
Mieszkanie zostało wykończone w wysokim standardzie i jest gotowe do wprowadzenia - wymaga jedynie umeblowania według własnego gustu.
Najważniejsze atuty:
brak instalacji gazowej
ogrzewanie podłogowe (promienniki podczerwieni)
duże okna zapewniające świetne doświetlenie wnętrza
jasne, ciepłe i przytulne wnętrze
niski koszt utrzymania
estetyczny, wyremontowany korytarz z podświetleniem LED
Metraż:
powierzchnia użytkowa: 47,71 m²
powierzchnia całkowita: 52,96 m²
To idealna propozycja zarówno do zamieszkania, jak i jako inwestycja pod wynajem.
Zapraszam do kontaktu!
To doskonała lokalizacja - w zasięgu kilku kroków dostępna jest pełna infrastruktura: restauracje, sklepy, szkoły oraz komunikacja miejska.
Układ mieszkania:
Pokój z aneksem kuchennym
sypialnia
garderoba
łazienka z WC
korytarz
Mieszkanie zostało wykończone w wysokim standardzie i jest gotowe do wprowadzenia - wymaga jedynie umeblowania według własnego gustu.
Najważniejsze atuty:
brak instalacji gazowej
ogrzewanie podłogowe (promienniki podczerwieni)
duże okna zapewniające świetne doświetlenie wnętrza
jasne, ciepłe i przytulne wnętrze
niski koszt utrzymania
estetyczny, wyremontowany korytarz z podświetleniem LED
Metraż:
powierzchnia użytkowa: 47,71 m²
powierzchnia całkowita: 52,96 m²
To idealna propozycja zarówno do zamieszkania, jak i jako inwestycja pod wynajem.
Zapraszam do kontaktu!
- powierzchnia: 47,71 m2
- piętro: 5 piętro
- liczba pięter w budynku: 5 piętrowy
- liczba pokoi: 2 pokoje
- liczba łazienek: 1 łazienka
- kuchnia: aneks
- rok budowy: 2026
- numer oferty: IDN34027
- data dodania: 28 Kwiecień 2026
- data ostatniej aktualizacji: 15 Kwiecień 2026
Dane kontaktowe

LOKUM NIERUCHOMOŚCI
al. Wyzwolenia 4A/170-553 Szczecin
tel: +48 91 812 30 88
tel: +48 886 169 788

LOKUM NIERUCHOMOSCI
tel: +48 91 812 30 88
tel: +48 662 220 876
Osoba do kontaktu: LOKUM NIERUCHOMOSCI
Instrukcje kontaktowe: LOKUM NIERUCHOMOSCI telefoniczny/ osobisty / mail













