Mieszkanie 50,15 m², Szczecin

mieszkanie • na sprzedaż • rynek pierwotny • Szczecin • Centrum
827 475 zł
• 50,15 m²
16 500 zł za m2
16 500 zł za m2
2 pokoje • 1 łazienka • 2 piętro • budynek 5 piętrowy • Rok budowy: 2025
Kontakt
W nowej inwestycji, w której zastosowano nowoczesne rozwiązania i nowoczesny design w centrum Szczecina
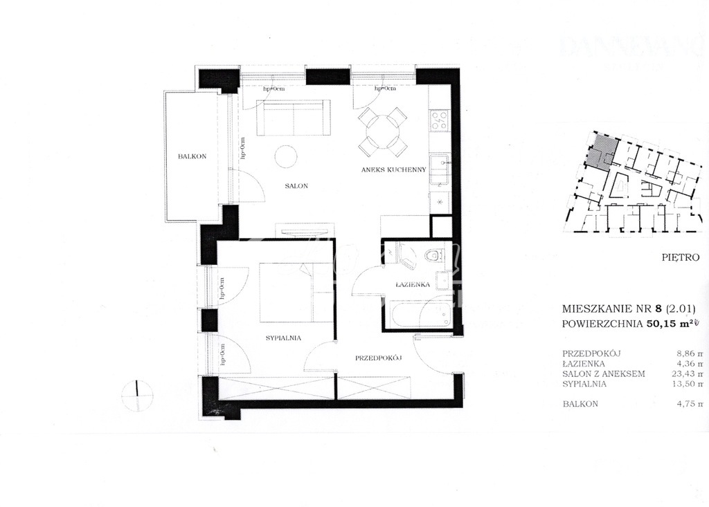
OPIS MIESZKANIA: mieszkanie 2 pokojowe o powierzchni 50,15 m2, z wyjściem na balkon o powierzchni 4,75 m2. Pokój z aneksem kuchennym o powierzchni 23,03 m2, sypialnia 16,83 m2, łazienka 3,75 m2, przedpokój 5,42 m2. Balkon od strony południowej o powierzchni 4,75 m2. II piętro w V piętrowym budynku z windą. Wystawa okien południowa.
W mieszkaniu klimatyzacja, sterowanie ogrzewaniem za pomocą aplikacji, komfortowe maty grzewcze w łazienkach, system kontaktronów w oknach wyłączających ogrzewanie, hotelowy wyłącznik światła, już nie ma konieczności sprawdzania każdego pomieszczenia, jednym ruchem wyłączają się wszystkie lampy w mieszkaniu. Ponadto system Kontaktronów w oknach wyłączających ogrzewanie w przypadku otwarcia okna, okna trójszybowe. Ogrzewanie i ciepła woda z Szczecińskiej Energetyki Cieplnej (SEC). W budynku nie ma gazu. Niski czynsz.
Przewidywany czas udostępnienia mieszkania grudzień 2025 roku.
Miejsce postojowe w garażu podziemnym w cenie 90.000 zł.
OPIS BUDYNKU: budynek wybudowany z bloczków silikatowych.
OPIS MIESZKANIA: mieszkanie 2 pokojowe o powierzchni 50,15 m2, z wyjściem na balkon o powierzchni 4,75 m2. Pokój z aneksem kuchennym o powierzchni 23,03 m2, sypialnia 16,83 m2, łazienka 3,75 m2, przedpokój 5,42 m2. Balkon od strony południowej o powierzchni 4,75 m2. II piętro w V piętrowym budynku z windą. Wystawa okien południowa.
W mieszkaniu klimatyzacja, sterowanie ogrzewaniem za pomocą aplikacji, komfortowe maty grzewcze w łazienkach, system kontaktronów w oknach wyłączających ogrzewanie, hotelowy wyłącznik światła, już nie ma konieczności sprawdzania każdego pomieszczenia, jednym ruchem wyłączają się wszystkie lampy w mieszkaniu. Ponadto system Kontaktronów w oknach wyłączających ogrzewanie w przypadku otwarcia okna, okna trójszybowe. Ogrzewanie i ciepła woda z Szczecińskiej Energetyki Cieplnej (SEC). W budynku nie ma gazu. Niski czynsz.
Przewidywany czas udostępnienia mieszkania grudzień 2025 roku.
Miejsce postojowe w garażu podziemnym w cenie 90.000 zł.
OPIS BUDYNKU: budynek wybudowany z bloczków silikatowych.
- powierzchnia: 50,15 m2
- piętro: 2 piętro
- liczba pięter w budynku: 5 piętrowy
- liczba pokoi: 2 pokoje
- liczba łazienek: 1 łazienka
- kuchnia: aneks
- dojazd: asfaltowy
- rok budowy: 2025
- ogrzewanie: miejskie
- numer oferty: FKT24960
- data ostatniej aktualizacji: 26 Styczeń 2026
Dane kontaktowe

LOKUM NIERUCHOMOŚCI
al. Wyzwolenia 4A/170-553 Szczecin
tel: +48 91 812 30 88
tel: +48 886 169 788
LOKUM NIERUCHOMOSCI
tel: +48 91 812 30 88
tel: +48 662 220 876
Osoba do kontaktu: LOKUM NIERUCHOMOSCI
Instrukcje kontaktowe: LOKUM NIERUCHOMOSCI telefoniczny/ osobisty / mail








