Działka budowlana 2172 m², Wrzosowo
.Na sprzedaż działka z rozpoczętą budową domu, zlokalizowana w cichej okolicy, blisko Zalewu Kamieńskim - Zatoka Wrzosowska oraz zaledwie 3 km od plaży w Dziwnówku.
Działka (2,172 m2) ogrodzona - zadbany trawnik, liczne nasadzenia; dojazd drogą z kostki brukowej.
Obecnie dom w stanie surowym zamkniętym.
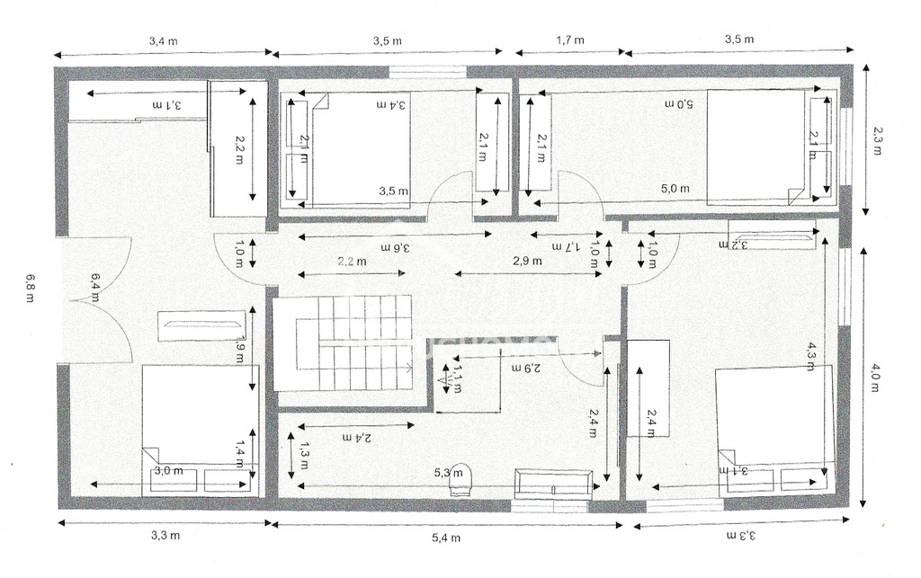
Na parterze :
- duży salon z jadalnią , od strony południowej,
- kuchnia,
- łazienka,
- kotłownia,
- pokój z własna łazienką.
Na piętrze :
- 4 pokoje, w tym jeden z garderobą.
- łazienka.
Dodatkowo poddasze.
W salonie przewidziane miejsce pod kominek.
Z górnych pokoi widok na Zalew.
Dom budowany w technologii tradycyjnej - ściany z POROTHERM , strop żelbetowy lany , okna PCV, dachówka ceramiczna.
W budynku rozciągnięta sieć elektryczna.
Do wykonania pozostało :
- instalacja wod - kan,
- ogrzewanie,
- tynki,
- ocieplenie ścian i poddasza.
Na tym etapie można jeszcze zmienić ustawienie ścianek i rozmieszczenie pomieszczeń.
Garaż w formie wiaty przylegającej do budynku.
Ogrzewanie i ciepła woda z pieca gazowego dwu-obiegowego.
Na działce skrzynka ZK, podłączenie wody i kanalizacji, oraz gaz.
Gmina jest jeszcze w trakcie uchwalania Planu Ogólnego, dzięki czemu można wystąpić o WZ lub zapis w planie o dodatkową zabudowę (np. domem mieszkalnym lub letniskowymi) lub wystąpić o podział działki na mniejsze.
Właściciel wystąpił o zgodę na dwa małe budynki letniskowe pod wynajem.
Działka (2,172 m2) ogrodzona - zadbany trawnik, liczne nasadzenia; dojazd drogą z kostki brukowej.
Obecnie dom w stanie surowym zamkniętym.
Na parterze :
- duży salon z jadalnią , od strony południowej,
- kuchnia,
- łazienka,
- kotłownia,
- pokój z własna łazienką.
Na piętrze :
- 4 pokoje, w tym jeden z garderobą.
- łazienka.
Dodatkowo poddasze.
W salonie przewidziane miejsce pod kominek.
Z górnych pokoi widok na Zalew.
Dom budowany w technologii tradycyjnej - ściany z POROTHERM , strop żelbetowy lany , okna PCV, dachówka ceramiczna.
W budynku rozciągnięta sieć elektryczna.
Do wykonania pozostało :
- instalacja wod - kan,
- ogrzewanie,
- tynki,
- ocieplenie ścian i poddasza.
Na tym etapie można jeszcze zmienić ustawienie ścianek i rozmieszczenie pomieszczeń.
Garaż w formie wiaty przylegającej do budynku.
Ogrzewanie i ciepła woda z pieca gazowego dwu-obiegowego.
Na działce skrzynka ZK, podłączenie wody i kanalizacji, oraz gaz.
Gmina jest jeszcze w trakcie uchwalania Planu Ogólnego, dzięki czemu można wystąpić o WZ lub zapis w planie o dodatkową zabudowę (np. domem mieszkalnym lub letniskowymi) lub wystąpić o podział działki na mniejsze.
Właściciel wystąpił o zgodę na dwa małe budynki letniskowe pod wynajem.
- powierzchnia: 2172 m2
- powierzchnia działki: 2172 m2
- ogrodzenie: ogrodzona
- dojazd: utwardzony
- numer oferty: RNH21235
- data dodania: 28 Kwiecień 2026
- data ostatniej aktualizacji: 15 Luty 2026
Dane kontaktowe

LOKUM NIERUCHOMOŚCI
al. Wyzwolenia 4A/170-553 Szczecin
tel: +48 91 812 30 88
tel: +48 886 169 788

LOKUM NIERUCHOMOSCI
tel: +48 91 812 30 88
tel: +48 662 220 876
Osoba do kontaktu: LOKUM NIERUCHOMOSCI
Instrukcje kontaktowe: LOKUM NIERUCHOMOSCI telefoniczny/ osobisty / mail




































