Dom 150 m², Wrzosowo



















domy wolnostojący • na sprzedaż • rynek wtórny • Wrzosowo
950 000 zł
• 150 m²
6 333 zł za m2
6 333 zł za m2
6 pokoi • 3 łazienki • parter • budynek 1 piętrowy • Rok budowy: 2025
Kontakt
Na sprzedaż dom wolnostojący zlokalizowany w cichej okolicy, blisko Zalewu Kamieńskim - Zatoka Wrzosowska oraz zaledwie 3 km od plaży w Dziwnówku.
Duża, ogrodzona działka (2,172 m2) - zadbany trawnik, liczne nasadzenia; dojazd drogą z kostki brukowej.
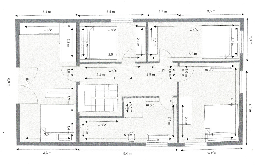
Na parterze :
- duży salon z jadalnią , od strony południowej,
- kuchnia,
- łazienka,
- kotłownia,
- pokój z własna łazienką.
Na piętrze :
- 4 pokoje, w tym jeden z garderobą.
- łazienka.
Dodatkowo poddasze.
W salonie przewidziane miejsce pod kominek.
Z górnych pokoi widok na Zalew.
Dom budowany w technologii tradycyjnej - ściany z POROTHERM , strop żelbetowy lany , okna PCV, dachówka ceramiczna.
Obecnie dom w stanie surowym zamkniętym. W budynku rozciągnięta sieć elektryczna.
Do wykonania pozostało :
- instalacja wod - kan,
- ogrzewanie,
- tynki,
- ocieplenie ścian i poddasza.
Na tym etapie można jeszcze zmienić ustawienie ścianek i rozmieszczenie pomieszczeń.
Garaż w formie wiaty przylegającej do budynku.
Ogrzewanie i ciepła woda z pieca gazowego dwu-obiegowego.
Na działce skrzynka ZK, podłączenie wody i kanalizacji, oraz gaz.
Gmina jest jeszcze w trakcie uchwalania Planu Ogólnego, dzięki czemu można wystąpić o WZ lub zapis w planie o dodatkową zabudowę (np. domem mieszkalnym lub letniskowymi).
Właściciel wystąpił o zgodę na dwa małe budynki pod wynajem.
Duża, ogrodzona działka (2,172 m2) - zadbany trawnik, liczne nasadzenia; dojazd drogą z kostki brukowej.
Na parterze :
- duży salon z jadalnią , od strony południowej,
- kuchnia,
- łazienka,
- kotłownia,
- pokój z własna łazienką.
Na piętrze :
- 4 pokoje, w tym jeden z garderobą.
- łazienka.
Dodatkowo poddasze.
W salonie przewidziane miejsce pod kominek.
Z górnych pokoi widok na Zalew.
Dom budowany w technologii tradycyjnej - ściany z POROTHERM , strop żelbetowy lany , okna PCV, dachówka ceramiczna.
Obecnie dom w stanie surowym zamkniętym. W budynku rozciągnięta sieć elektryczna.
Do wykonania pozostało :
- instalacja wod - kan,
- ogrzewanie,
- tynki,
- ocieplenie ścian i poddasza.
Na tym etapie można jeszcze zmienić ustawienie ścianek i rozmieszczenie pomieszczeń.
Garaż w formie wiaty przylegającej do budynku.
Ogrzewanie i ciepła woda z pieca gazowego dwu-obiegowego.
Na działce skrzynka ZK, podłączenie wody i kanalizacji, oraz gaz.
Gmina jest jeszcze w trakcie uchwalania Planu Ogólnego, dzięki czemu można wystąpić o WZ lub zapis w planie o dodatkową zabudowę (np. domem mieszkalnym lub letniskowymi).
Właściciel wystąpił o zgodę na dwa małe budynki pod wynajem.
- powierzchnia: 150 m2
- powierzchnia działki: 2172 m2
- piętro: parter
- liczba pięter w budynku: 1 piętrowy
- liczba pokoi: 6 pokoi
- liczba łazienek: 3 łazienki
- kuchnia: zamknięta
- ogrodzenie: ogrodzona
- dojazd: utwardzony
- rok budowy: 2025
- ogrzewanie: gazowe
- numer oferty: RNH21231
- data dodania: 28 Kwiecień 2026
- data ostatniej aktualizacji: 14 Maj 2026
Dane kontaktowe

LOKUM NIERUCHOMOŚCI
al. Wyzwolenia 4A/170-553 Szczecin
tel: +48 91 812 30 88
tel: +48 886 169 788

LOKUM NIERUCHOMOSCI
tel: +48 91 812 30 88
tel: +48 662 220 876
Osoba do kontaktu: LOKUM NIERUCHOMOSCI
Instrukcje kontaktowe: LOKUM NIERUCHOMOSCI telefoniczny/ osobisty / mail














