Mieszkanie 37,3 m², Szczecin, Niebuszewo, Księcia Barnima III Wielkiego











mieszkanie • na sprzedaż • rynek wtórny • Szczecin • Niebuszewo • Księcia Barnima III Wielkiego
329 000 zł
• 37,3 m²
8 820 zł za m2
8 820 zł za m2
2 pokoje • 1 łazienka • parter • budynek 4 piętrowy • Rok budowy: 1970
Kontakt
Spółdzielcze własnościowe prawo do lokalu możliwość kupna przez obywateli z poza UE. Niski ocieplony blok z lat 70 tych. W budynku instalacja światłowodowa orange.
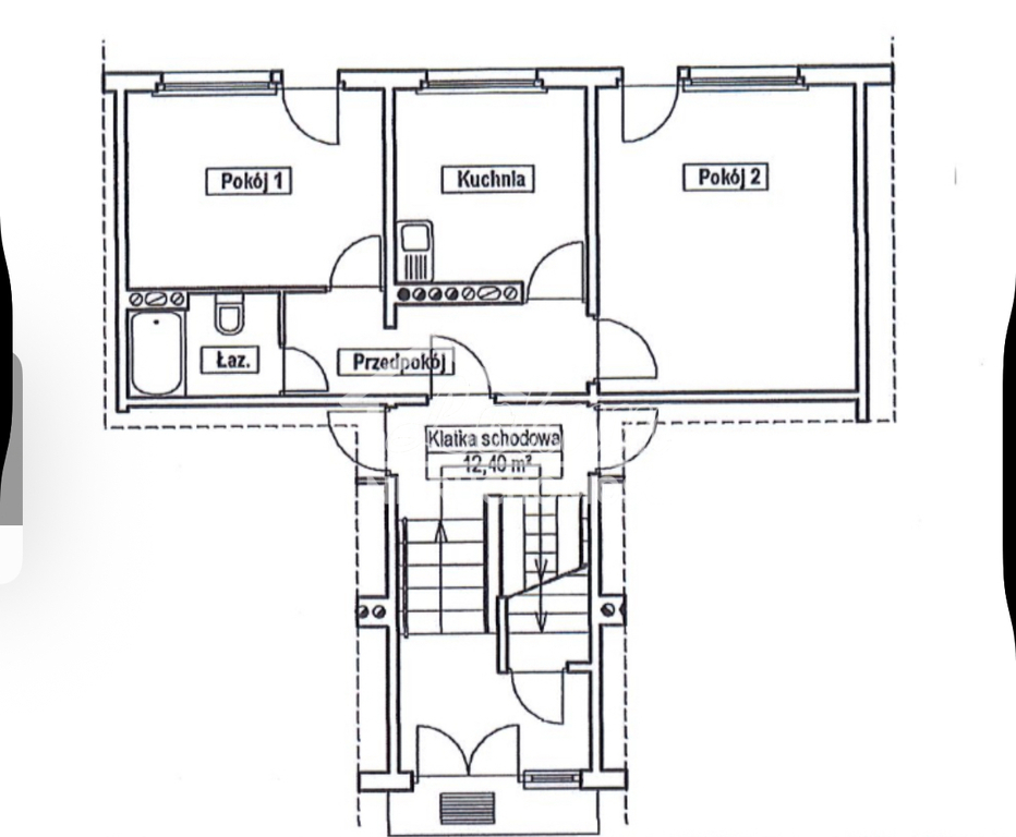
Na sprzedaż mieszkanie o powierzchni ok. 37,30 m2 składające się z 2 pokoi, osobnej kuchni, łazienki, przedpokoju. Mieszkanie rozkładowe , okna zwrócone na stronę wschodnią, w świetnej lokalizacji. Blisko komunikacja miejska. W pobliżu przepiękny Park Kasprowicza, Uniwersytet ZUT, sklepy. Mieszkanie wymaga odświeżenia
Opłaty:
- czynsz administracyjny ok. 600-700zł zł (zimna i ciepła woda, ogrzewanie, śmieci, ogrzewanie z sieci miejskiej)
- dodatkowo płatny prąd i gaz do kuchenki
przynależna piwnica ok. 2m2
Serdecznie zapraszam do kontaktu!
Na sprzedaż mieszkanie o powierzchni ok. 37,30 m2 składające się z 2 pokoi, osobnej kuchni, łazienki, przedpokoju. Mieszkanie rozkładowe , okna zwrócone na stronę wschodnią, w świetnej lokalizacji. Blisko komunikacja miejska. W pobliżu przepiękny Park Kasprowicza, Uniwersytet ZUT, sklepy. Mieszkanie wymaga odświeżenia
Opłaty:
- czynsz administracyjny ok. 600-700zł zł (zimna i ciepła woda, ogrzewanie, śmieci, ogrzewanie z sieci miejskiej)
- dodatkowo płatny prąd i gaz do kuchenki
przynależna piwnica ok. 2m2
Serdecznie zapraszam do kontaktu!
- powierzchnia: 37,3 m2
- piętro: parter
- liczba pięter w budynku: 4 piętrowy
- liczba pokoi: 2 pokoje
- liczba łazienek: 1 łazienka
- kuchnia: zamknięta
- rok budowy: 1970
- ogrzewanie: miejskie
- numer oferty: INS22053
- data ostatniej aktualizacji: 23 Styczeń 2026
Dane kontaktowe

LOKUM NIERUCHOMOŚCI
al. Wyzwolenia 4A/170-553 Szczecin
tel: +48 91 812 30 88
tel: +48 886 169 788
LOKUM NIERUCHOMOSCI
tel: +48 91 812 30 88
tel: +48 662 220 876
Osoba do kontaktu: LOKUM NIERUCHOMOSCI
Instrukcje kontaktowe: LOKUM NIERUCHOMOSCI telefoniczny/ osobisty / mail













