Dom 128 m², Szczecin











dom bliźniak • na sprzedaż • rynek pierwotny • Szczecin • Krzekowo-Bezrzecze
1 199 000 zł
• 128 m²
9 367 zł za m2
9 367 zł za m2
5 pokoi • 2 łazienki • parter • budynek 1 piętrowy • Rok budowy: 2025
Kontakt
Zapraszamy do zapoznania się z ofertą powstającej inwestycji, sześciu lokali mieszkalnych w zabudowie bliźniaczej położonych na Starym Bezrzeczu.
Inwestycja usytuowana w cichym, zielonym zaułku w szczecińskiej części dzielnicy. Na sporych ogródkach deweloper pozostawił dużo drzew i krzewów, które tworzą niepowtarzalny klimat.
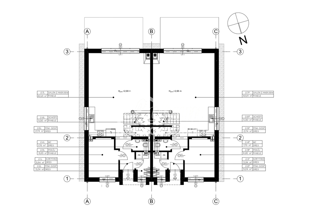
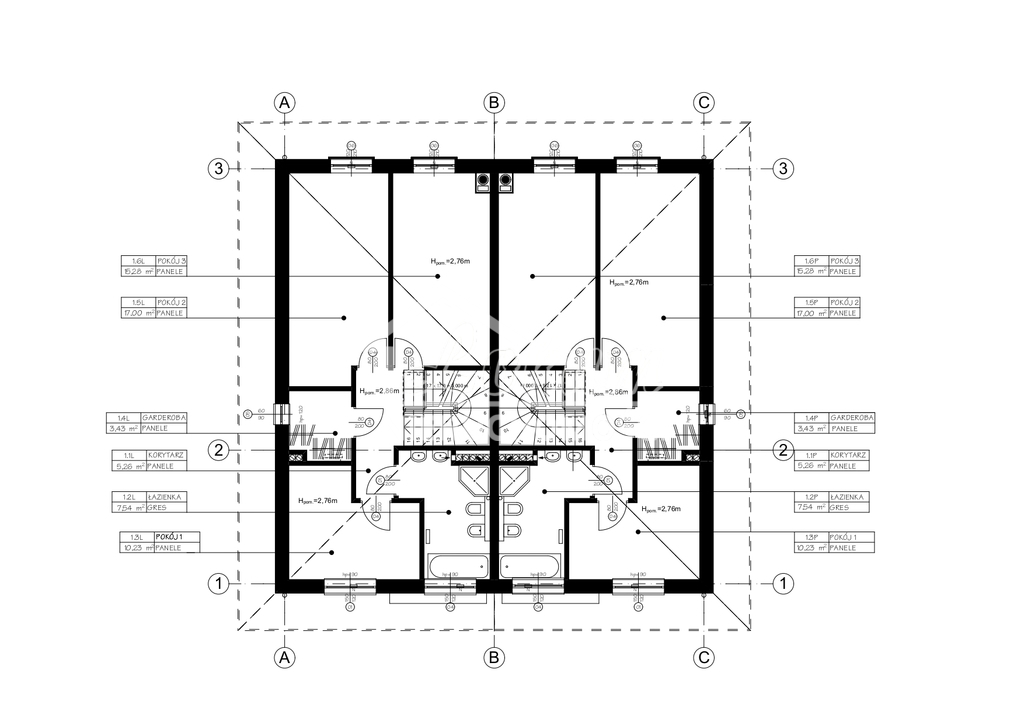
Domy budowane są z bloczków silikatowych ocieplonych styropianem 15 cm ,dach pokryty dachówką ceramiczną ocieplony pianą pur, okna PCV, ściany tynki gipsowe. CO i CW własne gazowe w całości ogrzewanie podłogowe.Nieruchomość rozłożona jest na dwóch kondygnacjach, na pierwszej znajduje się salon, kuchnia, łazienka oraz gabinet. Piętro to 3 sypialnie oraz łazienka. Do każdego lokalu przynależą po dwa miejsca postojowe oraz ogródki ok. 450 m2. Planowany termin zakończenia prac grudzień 2025 r.. Blisko szkoła, komunikacja miejska oraz sieci handlowe.
Zapraszam na prezentację.
Inwestycja usytuowana w cichym, zielonym zaułku w szczecińskiej części dzielnicy. Na sporych ogródkach deweloper pozostawił dużo drzew i krzewów, które tworzą niepowtarzalny klimat.
Domy budowane są z bloczków silikatowych ocieplonych styropianem 15 cm ,dach pokryty dachówką ceramiczną ocieplony pianą pur, okna PCV, ściany tynki gipsowe. CO i CW własne gazowe w całości ogrzewanie podłogowe.Nieruchomość rozłożona jest na dwóch kondygnacjach, na pierwszej znajduje się salon, kuchnia, łazienka oraz gabinet. Piętro to 3 sypialnie oraz łazienka. Do każdego lokalu przynależą po dwa miejsca postojowe oraz ogródki ok. 450 m2. Planowany termin zakończenia prac grudzień 2025 r.. Blisko szkoła, komunikacja miejska oraz sieci handlowe.
Zapraszam na prezentację.
- powierzchnia: 128 m2
- powierzchnia działki: 450 m2
- piętro: parter
- liczba pięter w budynku: 1 piętrowy
- liczba pokoi: 5 pokoi
- liczba łazienek: 2 łazienki
- kuchnia: zamknięta
- dojazd: utwardzony
- rok budowy: 2025
- numer oferty: BRW21278
- data ostatniej aktualizacji: 21 Styczeń 2026
Dane kontaktowe

LOKUM NIERUCHOMOŚCI
al. Wyzwolenia 4A/170-553 Szczecin
tel: +48 91 812 30 88
tel: +48 886 169 788
LOKUM NIERUCHOMOSCI
tel: +48 91 812 30 88
tel: +48 662 220 876
Osoba do kontaktu: LOKUM NIERUCHOMOSCI
Instrukcje kontaktowe: LOKUM NIERUCHOMOSCI telefoniczny/ osobisty / mail













