Dom 120 m², Szczecin











dom bliźniak • na sprzedaż • rynek pierwotny • Szczecin • Kijewo
949 000 zł
• 120 m²
7 908 zł za m2
7 908 zł za m2
5 pokoi • 1 łazienka • parter • budynek 1 piętrowy • Rok budowy: 2025
Kontakt
Serdecznie zapraszamy do zapoznania się z naszą najnowszą wyłącznością.
Na sprzedaż inwestycja deweloperska zlokalizowana w prawobrzeżnej części Szczecina - Kijewie - składająca się z dwóch budynków dwulokalowych. Jedna część została już zarezerwowana, do zakupu pozostały 3 lokale - jeden skrajny i dwa wewnętrzne. Cena dotyczy lokalu wewnętrznego. Cena zewnętrznego wynosi 1075000zł.
Łączna powierzchnia działki to 1139m2 - na każdy lokal przypada udział po 285m2 - w tym same ogródki po ok.100-120m2.
Do każdego lokalu przynależą dwa miejsca postojowe.
Każdy lokal mieszkalny składa się z dwóch poziomów (plus antresola) o powierzchni użytkowej 111,8m2.
W jej skład wchodzą:
PARTER:
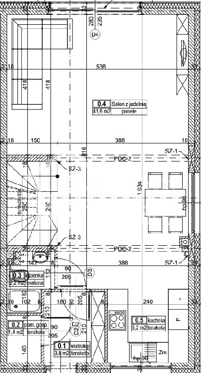
- salon z jadalnią 41,6 m2
- kuchnia 5,2 m2
- łazienka z prysznicem 2,2 m2
- pomieszczenie gospodarcze 1,4 m2
- wiatrołap 3,8 m2
PIĘTRO:
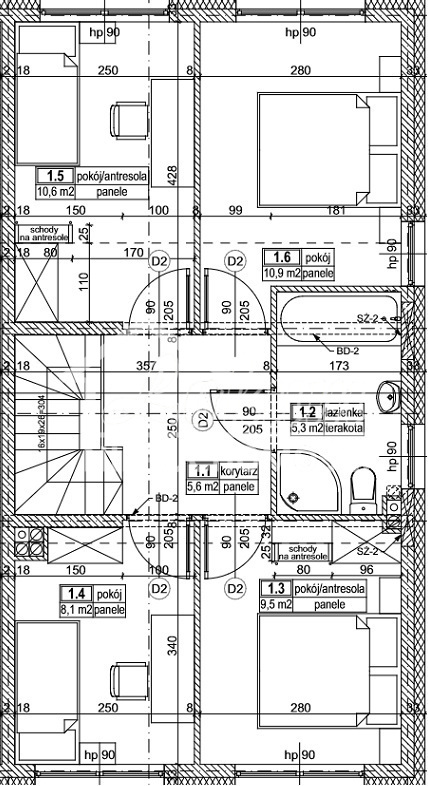
- 4 pokoje: 10,9 m2 10,6 m2 9,5 m2 i 8,1 m2
- łazienka 5,3 m2
- korytarz 5,6 m2
- antresola 7,6 m2.
Budynki wykonane z zastosowaniem technologii pasywnej. Wybudowane z silikatu, ocieplone styropianem 15 cm. Usadowione na ocieplonej płycie podłogowej. Ogrzewanie i ciepła woda z pompy ciepła. Dodatkowo panele fotowoltaiczne.
Woda z sieci miejskiej. Podpięcie do kanalizy i deszczówki.
Świetna lokalizacja - dostęp do pełnej infrastruktury, bliskość Puszczy Bukowej, ścieżek rowerowych oraz dogodny wyjazd z miasta.
Serdecznie polecamy i zapraszamy na prezentacje!
Na sprzedaż inwestycja deweloperska zlokalizowana w prawobrzeżnej części Szczecina - Kijewie - składająca się z dwóch budynków dwulokalowych. Jedna część została już zarezerwowana, do zakupu pozostały 3 lokale - jeden skrajny i dwa wewnętrzne. Cena dotyczy lokalu wewnętrznego. Cena zewnętrznego wynosi 1075000zł.
Łączna powierzchnia działki to 1139m2 - na każdy lokal przypada udział po 285m2 - w tym same ogródki po ok.100-120m2.
Do każdego lokalu przynależą dwa miejsca postojowe.
Każdy lokal mieszkalny składa się z dwóch poziomów (plus antresola) o powierzchni użytkowej 111,8m2.
W jej skład wchodzą:
PARTER:
- salon z jadalnią 41,6 m2
- kuchnia 5,2 m2
- łazienka z prysznicem 2,2 m2
- pomieszczenie gospodarcze 1,4 m2
- wiatrołap 3,8 m2
PIĘTRO:
- 4 pokoje: 10,9 m2 10,6 m2 9,5 m2 i 8,1 m2
- łazienka 5,3 m2
- korytarz 5,6 m2
- antresola 7,6 m2.
Budynki wykonane z zastosowaniem technologii pasywnej. Wybudowane z silikatu, ocieplone styropianem 15 cm. Usadowione na ocieplonej płycie podłogowej. Ogrzewanie i ciepła woda z pompy ciepła. Dodatkowo panele fotowoltaiczne.
Woda z sieci miejskiej. Podpięcie do kanalizy i deszczówki.
Świetna lokalizacja - dostęp do pełnej infrastruktury, bliskość Puszczy Bukowej, ścieżek rowerowych oraz dogodny wyjazd z miasta.
Serdecznie polecamy i zapraszamy na prezentacje!
- powierzchnia: 120 m2
- powierzchnia działki: 284 m2
- piętro: parter
- liczba pięter w budynku: 1 piętrowy
- liczba pokoi: 5 pokoi
- liczba łazienek: 1 łazienka
- dojazd: asfaltowy
- rok budowy: 2025
- numer oferty: MAP23001
- data ostatniej aktualizacji: 13 Kwiecień 2026
Dane kontaktowe

LOKUM NIERUCHOMOŚCI
al. Wyzwolenia 4A/170-553 Szczecin
tel: +48 91 812 30 88
tel: +48 886 169 788

LOKUM NIERUCHOMOSCI
tel: +48 91 812 30 88
tel: +48 662 220 876
Osoba do kontaktu: LOKUM NIERUCHOMOSCI
Instrukcje kontaktowe: LOKUM NIERUCHOMOSCI telefoniczny/ osobisty / mail















