Lokal usługowy do wynajęcia, 120,9 m², Szczecin









lokal usługowy • do wynajęcia • rynek wtórny • Szczecin • Śródmieście
7 000 zł
• 120,9 m²
58 zł za m2
58 zł za m2
5 pomieszczeń • parter • budynek 4 piętrowy • Rok budowy: 1999
Kontakt
Do wynajęcia lokal położony w okolicy ronda Giedroyca i targowiska Manhattan.
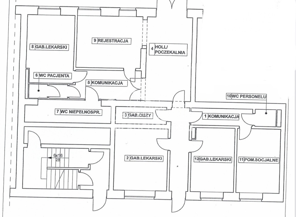
Lokal z wejściem bezpośrednio z ulicy o powierzchni 120,9m2, a w tym:
- hall,
- poczekalnia,
-5 pomieszczeń,
- 2 osobne WC,
- 2 pomieszczenia socjalne.
Lokal pełnił dotychczasowo funkcje medyczną (pozostało umeblowanie i wszelkie udogodnienia).
Wysokość lokalu: 3,03 m2.
Lokal klimatyzowany, z pełnymi zabezpieczeniami: alarm, rolety, monitoring.
Dostęp do lokalu z poziomu uchroniony szlabanem i furtką- 24h.
Istnieją 2 wejścia do lokalu.
Parking wewnętrzny w podwórku- 2 dostępne miejsca parkingowe za dodatkową opłatą do Zarządcy.
W budynku inne lokale usługowe.
Czysz najmu: 7 000 zł + czynsz do SM+prąd.
Media miejskie.
Idealna propozycja dla kontynuacji działalności medycznej: gabinetów lekarskich czy medycyny estetycznej. Doskonale sprawdzi się także jako biuro czy szkoła językowa.
Brak strefy płatnego parkowania. Miejsca ogólnodostępne na ulicy.
Dobry dostęp do komunikacji miejskiej: autobusy i tramwaje.
Polecam.
Klucze w biurze.
Lokal z wejściem bezpośrednio z ulicy o powierzchni 120,9m2, a w tym:
- hall,
- poczekalnia,
-5 pomieszczeń,
- 2 osobne WC,
- 2 pomieszczenia socjalne.
Lokal pełnił dotychczasowo funkcje medyczną (pozostało umeblowanie i wszelkie udogodnienia).
Wysokość lokalu: 3,03 m2.
Lokal klimatyzowany, z pełnymi zabezpieczeniami: alarm, rolety, monitoring.
Dostęp do lokalu z poziomu uchroniony szlabanem i furtką- 24h.
Istnieją 2 wejścia do lokalu.
Parking wewnętrzny w podwórku- 2 dostępne miejsca parkingowe za dodatkową opłatą do Zarządcy.
W budynku inne lokale usługowe.
Czysz najmu: 7 000 zł + czynsz do SM+prąd.
Media miejskie.
Idealna propozycja dla kontynuacji działalności medycznej: gabinetów lekarskich czy medycyny estetycznej. Doskonale sprawdzi się także jako biuro czy szkoła językowa.
Brak strefy płatnego parkowania. Miejsca ogólnodostępne na ulicy.
Dobry dostęp do komunikacji miejskiej: autobusy i tramwaje.
Polecam.
Klucze w biurze.
- powierzchnia: 120,9 m2
- piętro: parter
- liczba pięter w budynku: 4 piętrowy
- liczba pokoi: 5 pomieszczeń
- rok budowy: 1999
- ogrzewanie: miejskie
- numer oferty: SCN22998
- data ostatniej aktualizacji: 29 Styczeń 2026
Dane kontaktowe

LOKUM NIERUCHOMOŚCI
al. Wyzwolenia 4A/170-553 Szczecin
tel: +48 91 812 30 88
tel: +48 886 169 788
LOKUM NIERUCHOMOSCI
tel: +48 91 812 30 88
tel: +48 662 220 876
Osoba do kontaktu: LOKUM NIERUCHOMOSCI
Instrukcje kontaktowe: LOKUM NIERUCHOMOSCI telefoniczny/ osobisty / mail













