Lokal usługowy do wynajęcia, 287 m², Szczecin


















lokal usługowy • do wynajęcia • rynek wtórny • Szczecin • Śródmieście
8 610 zł
• 287 m²
30 zł za m2
30 zł za m2
1 pomieszczenie • parter • budynek 2 piętrowy • Rok budowy: 1930
Kontakt
Powierzchnia 271 m2 położona na parterze budynku biurowo-usługowego, która może być wykorzystywana zarówno na biuro, magazyn jak i cichą produkcję lub w innym dowolnym celu. Lokalizacja na obrzeżach Centrum.
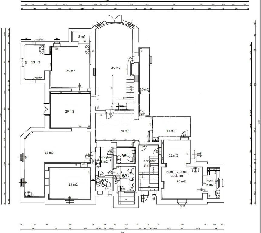
Oferowana powierzchnia składa się z 10 pomieszczeń, z których 6 posiada okna.
Do lokalu prowadzą 4 wejścia: dwa z głównych wejścia do budynku poprzez klatkę schodową oraz hol, oraz dwa bezpośrednio z zewnątrz. Jedno z wejść stanowią szerokie drzwi, poprzez które można dostarczać towary na paletach z poziomu „0”.
Możliwy jest wynajem mniejszej powierzchni, zgodnie z możliwościami podziału.
Na terenie nieruchomości kilka miejsc postojowych do wyłącznego korzystania przez najemcę oraz miejsca postojowe dostępne dla wszystkich najemców budynku. Ponadto na ulicy przed budynkiem znajdują się liczne ogólnodostępne miejsca parkingowe (SPP).
Powierzchnia świeżo po remoncie, zainstalowano wentylację mechaniczną oraz ogrzewanie podłogowe. Wymieniona instalacja elektryczna, ściany gładzone malowane, na podłogach niepyląca przemysłowa posadzka PCV, stolarka okienna i drzwiowa nowa. Na sufitach oświetlenie rastrowe.
Pomieszczenia o powierzchniach: 47, 45, 41, 25, 20 m2, pomieszczenie socjalne z aneksem kuchennym i stołówką 37 m2, magazynek 10 m2 oraz 3 łazienki: damska, męska i dla niepełnosprawnych ( w nowej glazurze i terakocie ) oraz korytarz. Wysokość pomieszczeń 2,80 m.
Koszt wynajmu wynosi 30 PLN netto/1 m2 (zawiera opłaty za wodę, śmieci, sprzątanie części wspólnych). Ogrzewanie indywidualne całego budynku (piec gazowy) rozliczane proporcjonalnie do zajmowanej powierzchni - ok. 850 zł w sezonie grzewczym). W poszczególnych pomieszczeniach ogrzewanie strefowe z manipulatorami. Rozprowadzona instalacja alarmowa i czujniki dymu.
Wymagana kaucja.
Doskonała lokalizacja, rozpoznawalne miejsce, szybki dojazd do ścisłego Centrum. Sąsiedztwo przystanków komunikacji miejskiej.
Oferowana powierzchnia składa się z 10 pomieszczeń, z których 6 posiada okna.
Do lokalu prowadzą 4 wejścia: dwa z głównych wejścia do budynku poprzez klatkę schodową oraz hol, oraz dwa bezpośrednio z zewnątrz. Jedno z wejść stanowią szerokie drzwi, poprzez które można dostarczać towary na paletach z poziomu „0”.
Możliwy jest wynajem mniejszej powierzchni, zgodnie z możliwościami podziału.
Na terenie nieruchomości kilka miejsc postojowych do wyłącznego korzystania przez najemcę oraz miejsca postojowe dostępne dla wszystkich najemców budynku. Ponadto na ulicy przed budynkiem znajdują się liczne ogólnodostępne miejsca parkingowe (SPP).
Powierzchnia świeżo po remoncie, zainstalowano wentylację mechaniczną oraz ogrzewanie podłogowe. Wymieniona instalacja elektryczna, ściany gładzone malowane, na podłogach niepyląca przemysłowa posadzka PCV, stolarka okienna i drzwiowa nowa. Na sufitach oświetlenie rastrowe.
Pomieszczenia o powierzchniach: 47, 45, 41, 25, 20 m2, pomieszczenie socjalne z aneksem kuchennym i stołówką 37 m2, magazynek 10 m2 oraz 3 łazienki: damska, męska i dla niepełnosprawnych ( w nowej glazurze i terakocie ) oraz korytarz. Wysokość pomieszczeń 2,80 m.
Koszt wynajmu wynosi 30 PLN netto/1 m2 (zawiera opłaty za wodę, śmieci, sprzątanie części wspólnych). Ogrzewanie indywidualne całego budynku (piec gazowy) rozliczane proporcjonalnie do zajmowanej powierzchni - ok. 850 zł w sezonie grzewczym). W poszczególnych pomieszczeniach ogrzewanie strefowe z manipulatorami. Rozprowadzona instalacja alarmowa i czujniki dymu.
Wymagana kaucja.
Doskonała lokalizacja, rozpoznawalne miejsce, szybki dojazd do ścisłego Centrum. Sąsiedztwo przystanków komunikacji miejskiej.
- powierzchnia: 287 m2
- piętro: parter
- liczba pięter w budynku: 2 piętrowy
- liczba pokoi: 1 pomieszczenie
- dojazd: asfaltowy
- rok budowy: 1930
- numer oferty: ASP21702
- data ostatniej aktualizacji: 27 Kwiecień 2026
Dane kontaktowe

LOKUM NIERUCHOMOŚCI
al. Wyzwolenia 4A/170-553 Szczecin
tel: +48 91 812 30 88
tel: +48 886 169 788

LOKUM NIERUCHOMOSCI
tel: +48 91 812 30 88
tel: +48 662 220 876
Osoba do kontaktu: LOKUM NIERUCHOMOSCI
Instrukcje kontaktowe: LOKUM NIERUCHOMOSCI telefoniczny/ osobisty / mail













