Lokal usługowy na sprzedaż, 267,85 m², Szczecin



















lokal usługowy • na sprzedaż • rynek wtórny • Szczecin • Śródmieście
1 620 000 zł
• 267,85 m²
6 048 zł za m2
6 048 zł za m2
1 pomieszczenie • parter • budynek 3 piętrowy • Rok budowy: 1999
Kontakt
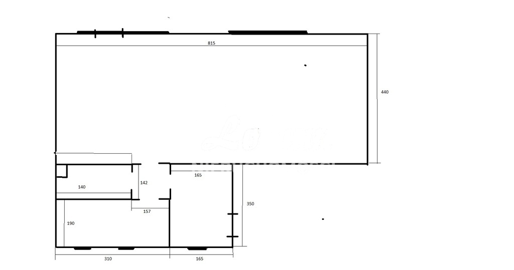
Na sprzedaż nieduża kamienica o powierzchni użytkowej 267,85 m2 znajdująca się w zabytkowej części Szczecina na Podzamczu. Obiekt składa się z trzech kondygnacji. Na parterze znajduje się lokal użytkowy o powierzchni około 54 m2, który świetnie nadaje się pod działalność: salon masażu salon fryzjerski , salon kosmetyczny , biuro . Na pierwszym piętrze znajduje się przestronne mieszkanie składające się z salonu z wyjściem na balkon, sypialni, otwartej kuchni oraz łazienki o powierzchni około 53 m2.
Na drugiej kondygnacji jest dwupoziomowe mieszkanie o powierzchni około 110 m2. Na pierwszym poziomie tego mieszkania jest salon z dużą otwartą kuchnią, łazienka i pomieszczenie gospodarcze zaś na drugim poziomie są dwie sypialnie, łazienka oraz kotłownia z piecem gazowym ogrzewającym całą kamienicę oraz małe pomieszczenie z oknem około 2,5 m2. Budynek posiada wykończoną piwnicę, około 30 m2, którą z powodzeniam można wykorzystać do prowadzenia działalności..
Kamienica została wybudowana w 1999 roku. Okna są drewniane. Drzwi wejściowe oraz pozostała stolarka drewniana.. Ogrzewanie piec gazowy. Ciepła woda. piec gazowy.
Budynek położony jest w niedalekiej odległości od centrum (15 minut pieszo). Do dyspozycji jest również komunikacja miejska zapewniająca łatwy dostęp do innych części miasta, do centrum w parę minut można dostać się liniami autobusowymi: 61, 75, 87 oraz liniami tramwajowymi: 2, 6, 8. W okolicy znajdują się: opera, Zamek Książąt Pomorskich, liczne restauracje, bulwar Piastowski, rynek Sienny, Wały Chrobrego oraz dwie galerie (Galaxy oraz Kaskada).
Na drugiej kondygnacji jest dwupoziomowe mieszkanie o powierzchni około 110 m2. Na pierwszym poziomie tego mieszkania jest salon z dużą otwartą kuchnią, łazienka i pomieszczenie gospodarcze zaś na drugim poziomie są dwie sypialnie, łazienka oraz kotłownia z piecem gazowym ogrzewającym całą kamienicę oraz małe pomieszczenie z oknem około 2,5 m2. Budynek posiada wykończoną piwnicę, około 30 m2, którą z powodzeniam można wykorzystać do prowadzenia działalności..
Kamienica została wybudowana w 1999 roku. Okna są drewniane. Drzwi wejściowe oraz pozostała stolarka drewniana.. Ogrzewanie piec gazowy. Ciepła woda. piec gazowy.
Budynek położony jest w niedalekiej odległości od centrum (15 minut pieszo). Do dyspozycji jest również komunikacja miejska zapewniająca łatwy dostęp do innych części miasta, do centrum w parę minut można dostać się liniami autobusowymi: 61, 75, 87 oraz liniami tramwajowymi: 2, 6, 8. W okolicy znajdują się: opera, Zamek Książąt Pomorskich, liczne restauracje, bulwar Piastowski, rynek Sienny, Wały Chrobrego oraz dwie galerie (Galaxy oraz Kaskada).
- powierzchnia: 267,85 m2
- powierzchnia działki: 101 m2
- piętro: parter
- liczba pięter w budynku: 3 piętrowy
- liczba pokoi: 1 pomieszczenie
- ogrodzenie: nie ogrodzona
- dojazd: asfaltowy
- rok budowy: 1999
- ogrzewanie: gazowe
- numer oferty: CIE24701
- data ostatniej aktualizacji: 3 Luty 2026
Dane kontaktowe

LOKUM NIERUCHOMOŚCI
al. Wyzwolenia 4A/170-553 Szczecin
tel: +48 91 812 30 88
tel: +48 886 169 788
LOKUM NIERUCHOMOSCI
tel: +48 91 812 30 88
tel: +48 662 220 876
Osoba do kontaktu: LOKUM NIERUCHOMOSCI
Instrukcje kontaktowe: LOKUM NIERUCHOMOSCI telefoniczny/ osobisty / mail













