Dom 133 m², Zieleniewo





dom w zabudowie szeregowej • na sprzedaż • rynek pierwotny • Zieleniewo
740 000 zł
• 133 m²
5 564 zł za m2
5 564 zł za m2
4 pokoje • 1 łazienka • parter • budynek 1 piętrowy • Rok budowy: 2026
Kontakt
Na sprzedaż dom w zabudowie szeregowej - Zieleniewo, 148,21 m², garaż, ogród, blisko jeziora Miedwie
Zieleniewo | 148,21 m² | Garaż | Ogród | Stan deweloperski | 300 m od jeziora Miedwie
Na sprzedaż nowoczesny dom w zabudowie szeregowej o powierzchni użytkowej 147,59 m², zlokalizowany w Zieleniewie - spokojnej miejscowości tuż przy jeziorze Miedwie. Inwestycja jest w trakcie budowy. Budynek zostanie oddany w stanie deweloperskim, co daje możliwość wykończenia wnętrza według własnych potrzeb.
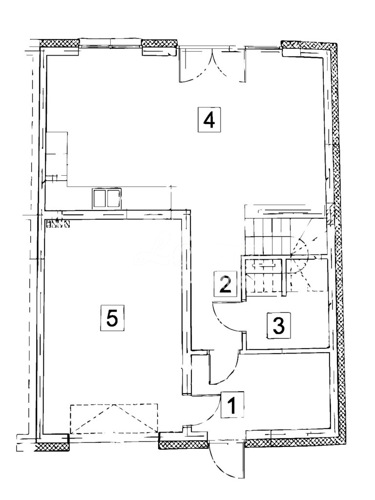
Rozkład pomieszczeń:
Parter:
wiatrołap z miejscem na szafę
przestronny salon z aneksem kuchennym i wyjściem do ogrodu
toaleta dla gości
garaż w bryle budynku
Piętro:
3 sypialnie
garderoba
duża łazienka
korytarz
Dodatkowe informacje:
ogrzewanie gazowe (możliwość zamontowania pompy ciepła)
duże przeszklenia zapewniające dobre doświetlenie wnętrz (okna trzyszybowe)
prywatny ogródek
miejsce postojowe przed budynkiem
Lokalizacja:
spokojna okolica z dostępem do terenów rekreacyjnych
300 metrów do jeziora Miedwie
10 minut do Stargardu, 20 minut do Szczecina
dobre połączenie drogowe
Powierzchnia działek od 215 m2 do 460m2
Za dodatkową opłatą istnieje możliwość zamontowania pompy ciepła zamiast tradycyjnego ogrzewania gazowego.
Dom idealny dla rodzin, które szukają nowoczesnej przestrzeni w pobliżu natury, z szybkim dojazdem do miasta.
Zapraszamy do kontaktu - chętnie udzielimy szczegółowych informacji i umówimy prezentację na miejscu.
Zieleniewo | 148,21 m² | Garaż | Ogród | Stan deweloperski | 300 m od jeziora Miedwie
Na sprzedaż nowoczesny dom w zabudowie szeregowej o powierzchni użytkowej 147,59 m², zlokalizowany w Zieleniewie - spokojnej miejscowości tuż przy jeziorze Miedwie. Inwestycja jest w trakcie budowy. Budynek zostanie oddany w stanie deweloperskim, co daje możliwość wykończenia wnętrza według własnych potrzeb.
Rozkład pomieszczeń:
Parter:
wiatrołap z miejscem na szafę
przestronny salon z aneksem kuchennym i wyjściem do ogrodu
toaleta dla gości
garaż w bryle budynku
Piętro:
3 sypialnie
garderoba
duża łazienka
korytarz
Dodatkowe informacje:
ogrzewanie gazowe (możliwość zamontowania pompy ciepła)
duże przeszklenia zapewniające dobre doświetlenie wnętrz (okna trzyszybowe)
prywatny ogródek
miejsce postojowe przed budynkiem
Lokalizacja:
spokojna okolica z dostępem do terenów rekreacyjnych
300 metrów do jeziora Miedwie
10 minut do Stargardu, 20 minut do Szczecina
dobre połączenie drogowe
Powierzchnia działek od 215 m2 do 460m2
Za dodatkową opłatą istnieje możliwość zamontowania pompy ciepła zamiast tradycyjnego ogrzewania gazowego.
Dom idealny dla rodzin, które szukają nowoczesnej przestrzeni w pobliżu natury, z szybkim dojazdem do miasta.
Zapraszamy do kontaktu - chętnie udzielimy szczegółowych informacji i umówimy prezentację na miejscu.
- powierzchnia: 133 m2
- powierzchnia działki: 250 m2
- piętro: parter
- liczba pięter w budynku: 1 piętrowy
- liczba pokoi: 4 pokoje
- liczba łazienek: 1 łazienka
- kuchnia: aneks
- dojazd: utwardzony
- rok budowy: 2026
- ogrzewanie: gazowe
- numer oferty: HES28823
- data ostatniej aktualizacji: 16 Styczeń 2026
Dane kontaktowe

LOKUM NIERUCHOMOŚCI
al. Wyzwolenia 4A/170-553 Szczecin
tel: +48 91 812 30 88
tel: +48 886 169 788
LOKUM NIERUCHOMOSCI
tel: +48 91 812 30 88
tel: +48 662 220 876
Osoba do kontaktu: LOKUM NIERUCHOMOSCI
Instrukcje kontaktowe: LOKUM NIERUCHOMOSCI telefoniczny/ osobisty / mail












