Mieszkanie 56,8 m², Stargard, Giżynek, Władysława Broniewskiego













mieszkanie • na sprzedaż • rynek wtórny • Stargard • Giżynek • Władysława Broniewskiego
350 000 zł
• 56,8 m²
6 162 zł za m2
6 162 zł za m2
3 pokoje • 1 łazienka • 1 piętro • budynek 2 piętrowy • Rok budowy: 1950
Kontakt
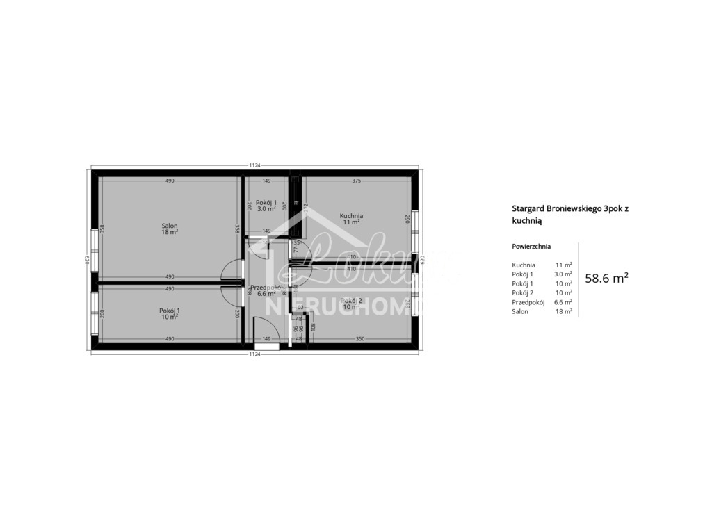
Na sprzedaż 3-pokojowe mieszkanie o powierzchni 58,6 m², położone na 1. piętrze w niskim, 2-piętrowym budynku z cegły. Nieruchomość znajduje się tuż przy zjeździe z trasy S10 - to świetna propozycja dla osób dojeżdżających do pracy S10-tką oraz rodzin szukających mieszkania z potencjałem aranżacyjnym w atrakcyjnej cenie.
Mieszkanie
58,6 m² 1 piętro 3 rozkładowe, ustawne pokoje duża, widna kuchnia łazienka przestronny przedpokój ekspozycja okien: północ - południe budynek z cegły drzwi wejściowe do wymiany stan: do remont Obecny układ to klasyczne 3 niezależne pokoje z osobną kuchnią. Istnieje możliwość otwarcia przestrzeni i stworzenia dużego salonu z aneksem kuchennym - idealne rozwiązanie dla osób ceniących nowoczesne wnętrza.
Budynek
niski, 2-piętrowy blok wymieniona instalacja elektryczna światłowód zadbane podwórko z miejscami parkingowymi i terenem zielonym duża piwnica przynależna do mieszkania
Ważne:
ogrzewanie oraz ciepła woda z sieci miejskiej czynsz (z funduszem remontowym oraz zaliczkami na wodę i ogrzewanie): ok. 900 zł możliwość zakupu murowanego garażu w cenie 45 000 zł
Lokalizacja
Bardzo dobra lokalizacja przy ul. Broniewskiego. Ulica Władysława Broniewskiego to jedna z dłuższych i ważniejszych ulic w Stargardzie, ciągnąca się przez kilka kilometrów i łącząca różne części miasta, w tym centrum z osiedlem Pyrzyckim. Pełni też lokalną rolę komunikacyjną, bo jest częścią drogi wojewódzkiej (DW106), co ułatwia wyjazd z miasta oraz szybki dojazd np. do drogi S10.
W najbliższej okolicy znajdują się sklepy takie jak: Lidl, Biedronka, Aldi, Rossmann, Pepco, a także punkty usługowe, gastronomiczne, paczkomaty, sala zabaw oraz przystanki autobusowe (linie 7, 8, 9, 21, 36). Do centrum Stargard dojedziemy w 5 minut, natomiast na prawobrzeże Szczecina w około 25 minut. Najbliższe przedszkole i szkoła podstawowa oddalone są zaledwie o 2 minuty samochodem.
- powierzchnia: 56,8 m2
- piętro: 1 piętro
- liczba pięter w budynku: 2 piętrowy
- liczba pokoi: 3 pokoje
- liczba łazienek: 1 łazienka
- kuchnia: zamknięta
- rok budowy: 1950
- ogrzewanie: miejskie
- numer oferty: 133/13324/OMS
- data dodania: 28 Kwiecień 2026
- data ostatniej aktualizacji: 6 Marzec 2026
Dane kontaktowe

LOKUM NIERUCHOMOŚCI
al. Wyzwolenia 4A/170-553 Szczecin
tel: +48 91 812 30 88
tel: +48 886 169 788

LOKUM NIERUCHOMOSCI
tel: +48 91 812 30 88
tel: +48 662 220 876
Osoba do kontaktu: LOKUM NIERUCHOMOSCI
Instrukcje kontaktowe: LOKUM NIERUCHOMOSCI telefoniczny/ osobisty / mail













