Dom 104,8 m², Modrzewie
















domy wolnostojący • na sprzedaż • rynek pierwotny • Modrzewie
650 000 zł
• 104,8 m²
6 202 zł za m2
6 202 zł za m2
4 pokoje • 1 łazienka • parter • budynek budynek parterowy • Rok budowy: 2025
Kontakt
Zapraszamy do zapoznania się z oferta sprzedaży DOMU JEDNORODZINNEGO w Modrzewiu, 5 km od Goleniowa.
Przedmiotem sprzedaży jest dom jednorodzinny parterowy w stanie deweloperskim, wybudowany w technologii tradycyjnej, charakteryzującej się prostą, zwartą bryłą. Idealny dla rodziny 2+2.
Dom wykończony do stanu deweloperskiego, oddany do użytkowania w 2025 r.
Dom położony na działce o pow. 404 m2 wśród 4 takich samych domów, które są również na sprzedaż.
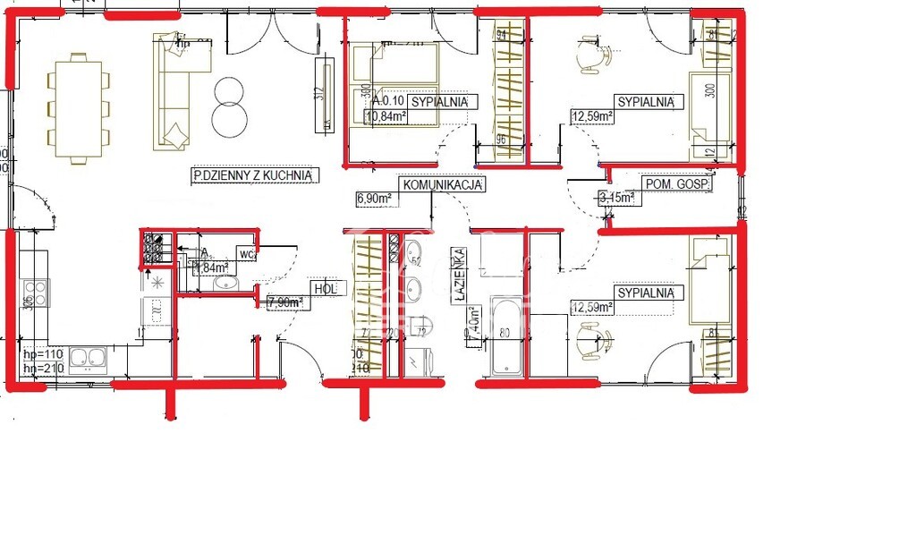
Dom Posiada powierzchnię użytkową 104,80 m2, składa się z następujących pomieszczeń:
- salon z jadalnią i aneksem kuchennym o pow. 39,01 m² z wyjściem na ogród z dwóch stron,
- pokój - 12,59 m²,
- pokój - 12,59 m²,
- pokój - 10,84 m²,
- garderoba - 3,15m² z wyłazem na strych,
- łazienka - 7,40 m²,
- WC - 1,84 m²,
- przedpokój - 6,90 m²,
- holl - 7,90 m²,
- kotłownia 2,58 m².
KONSTRUKCJA:
- Ściany konstrukcyjne - bloczki beton komórkowy,
- Strop - ocieplony wełną mineralną,
- Ocieplenie ścian zewnętrznych - styropian,
- wykonany tynk elewacyjny,
- Pokrycie dachu - dachówka Roben,
STANDARD WYKOŃCZENIA
- drzwi wejściowe KMT,
- okna PCV 3-szybowe w kolorze antracyt,
- instalacja - elektryczna, wodna, kanalizacyjna, światłowód, domofon,
- system ogrzewania podłogowego w całym domu,
- tynki klasyczne - gipsowe
Media:
- woda - miejska,
- kanalizacja - miejska,
- prąd,
- pompa ciepła,
- światłowód.
Pompa ciepła Firmy KASAI z zasobnikiem CWU.
Cały teren wszystkich 5 domów jest ogrodzony, z bramą wjazdową oraz furtką. NA wspólnym terenie znajduję się parking na ok 10 aut do wykorzystania dla przyszłych właścicieli nieruchomości. Zostanie jeszcze wykonane ogrodzenie oddzielające poszczególne budynki.
To doskonały wariant dla 4-5 osobowej rodziny.
Lokalizacja:
Modrzewie oddalone jest 5 km od Goleniowa. Posiada doskonałą komunikację z drogą ekspresową S3 i S6 (Szczecin, Świnoujście, Gdańsk, Koszalin).
Atrakcyjna oferta, spełnij marzenie o budowie domu w bardzo dobrej lokalizacji!
Koszty związane z nabyciem nieruchomości:
- opłaty u notariusza - taksa notarialna, opłaty sądowe, opłata za wypisy, PCC (możliwość zwolnienia z podatku)
- wynagrodzenie biura nieruchomości za usługę pośrednictwa w zakupie.
ZAPRASZAMY NA PREZENTACJE i DO SKŁADANIA OFERT ZAKUPU!!!
Przedmiotem sprzedaży jest dom jednorodzinny parterowy w stanie deweloperskim, wybudowany w technologii tradycyjnej, charakteryzującej się prostą, zwartą bryłą. Idealny dla rodziny 2+2.
Dom wykończony do stanu deweloperskiego, oddany do użytkowania w 2025 r.
Dom położony na działce o pow. 404 m2 wśród 4 takich samych domów, które są również na sprzedaż.
Dom Posiada powierzchnię użytkową 104,80 m2, składa się z następujących pomieszczeń:
- salon z jadalnią i aneksem kuchennym o pow. 39,01 m² z wyjściem na ogród z dwóch stron,
- pokój - 12,59 m²,
- pokój - 12,59 m²,
- pokój - 10,84 m²,
- garderoba - 3,15m² z wyłazem na strych,
- łazienka - 7,40 m²,
- WC - 1,84 m²,
- przedpokój - 6,90 m²,
- holl - 7,90 m²,
- kotłownia 2,58 m².
KONSTRUKCJA:
- Ściany konstrukcyjne - bloczki beton komórkowy,
- Strop - ocieplony wełną mineralną,
- Ocieplenie ścian zewnętrznych - styropian,
- wykonany tynk elewacyjny,
- Pokrycie dachu - dachówka Roben,
STANDARD WYKOŃCZENIA
- drzwi wejściowe KMT,
- okna PCV 3-szybowe w kolorze antracyt,
- instalacja - elektryczna, wodna, kanalizacyjna, światłowód, domofon,
- system ogrzewania podłogowego w całym domu,
- tynki klasyczne - gipsowe
Media:
- woda - miejska,
- kanalizacja - miejska,
- prąd,
- pompa ciepła,
- światłowód.
Pompa ciepła Firmy KASAI z zasobnikiem CWU.
Cały teren wszystkich 5 domów jest ogrodzony, z bramą wjazdową oraz furtką. NA wspólnym terenie znajduję się parking na ok 10 aut do wykorzystania dla przyszłych właścicieli nieruchomości. Zostanie jeszcze wykonane ogrodzenie oddzielające poszczególne budynki.
To doskonały wariant dla 4-5 osobowej rodziny.
Lokalizacja:
Modrzewie oddalone jest 5 km od Goleniowa. Posiada doskonałą komunikację z drogą ekspresową S3 i S6 (Szczecin, Świnoujście, Gdańsk, Koszalin).
Atrakcyjna oferta, spełnij marzenie o budowie domu w bardzo dobrej lokalizacji!
Koszty związane z nabyciem nieruchomości:
- opłaty u notariusza - taksa notarialna, opłaty sądowe, opłata za wypisy, PCC (możliwość zwolnienia z podatku)
- wynagrodzenie biura nieruchomości za usługę pośrednictwa w zakupie.
ZAPRASZAMY NA PREZENTACJE i DO SKŁADANIA OFERT ZAKUPU!!!
- powierzchnia: 104,8 m2
- powierzchnia działki: 404 m2
- piętro: parter
- liczba pięter w budynku: budynek parterowy
- liczba pokoi: 4 pokoje
- liczba łazienek: 1 łazienka
- kuchnia: aneks
- dojazd: asfaltowy
- rok budowy: 2025
- numer oferty: MNI22195
- data dodania: 28 Kwiecień 2026
- data ostatniej aktualizacji: 20 Kwiecień 2026
Dane kontaktowe

LOKUM NIERUCHOMOŚCI
al. Wyzwolenia 4A/170-553 Szczecin
tel: +48 91 812 30 88
tel: +48 886 169 788

LOKUM NIERUCHOMOSCI
tel: +48 91 812 30 88
tel: +48 662 220 876
Osoba do kontaktu: LOKUM NIERUCHOMOSCI
Instrukcje kontaktowe: LOKUM NIERUCHOMOSCI telefoniczny/ osobisty / mail














