Mieszkanie 60,7 m², Mierzyn










mieszkanie • na sprzedaż • rynek pierwotny • Mierzyn
631 280 zł
• 60,7 m²
10 400 zł za m2
10 400 zł za m2
3 pokoje • 1 łazienka • 3 piętro • budynek 3 piętrowy • Rok budowy: 2025
Kontakt
Na sprzedaż mieszkanie trzy pokojowe w stanie deweloperskim w niskim budynku z winą na Mierzynie.
Apartament znajduje się na ostatnim trzecim piętrze ( brak sąsiada nad głową ).
Winda zjeżdża do hali z miejscami parkingowymi.
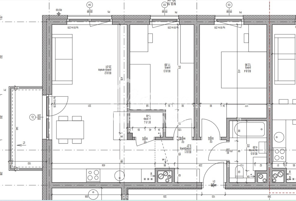
Na powierzchnię 60,7m2 składa się:
salon z aneksem kuchennym o pow. 25m2sypialnia o pow. 11,89m2sypialnia o pow. 12,96m2 łazienka razem z WC o pow. 4m2 pomieszczenie gospodarcze o pow. 1,5m2 korytarz
W standardzie deweloperskim :
okna trzyszybowe z nawietrznikami tynki gipsowe, maszynowerozprowadzona instalacja elektryczna, wodno-kanalizacyjna, grzewczarozprowadzona instalacja telewizyjna i internetowaw sypialniach grzejniki panelowe w łazience grzejnik drabinkowy..
Do każdego mieszkania trzeba dokupić obligatoryjnie minimum jedno miejsce parkingowe znajdujące się w hali garażowej pod budynkiem ( winda zjeżdża na poziom: -1 )
Ogrzewanie i ciepła woda z SEC'u.
Inwestycja zakończona, mieszkanie gotowe do wydania.
Nowoczesna architektura, kompleksowo zagospodarowany teren osiedla, chodniki, niskie nasadzenia, plac zabaw dla najmłodszych.
Doskonała lokalizacja, spokojne sąsiedztwo, niska zabudowa, w pobliżu: szkoła ,żłobek, przedszkole, sklepy, blisko komunikacja miejska.
Zapraszam na prezentację
Apartament znajduje się na ostatnim trzecim piętrze ( brak sąsiada nad głową ).
Winda zjeżdża do hali z miejscami parkingowymi.
Na powierzchnię 60,7m2 składa się:
salon z aneksem kuchennym o pow. 25m2sypialnia o pow. 11,89m2sypialnia o pow. 12,96m2 łazienka razem z WC o pow. 4m2 pomieszczenie gospodarcze o pow. 1,5m2 korytarz
W standardzie deweloperskim :
okna trzyszybowe z nawietrznikami tynki gipsowe, maszynowerozprowadzona instalacja elektryczna, wodno-kanalizacyjna, grzewczarozprowadzona instalacja telewizyjna i internetowaw sypialniach grzejniki panelowe w łazience grzejnik drabinkowy..
Do każdego mieszkania trzeba dokupić obligatoryjnie minimum jedno miejsce parkingowe znajdujące się w hali garażowej pod budynkiem ( winda zjeżdża na poziom: -1 )
Ogrzewanie i ciepła woda z SEC'u.
Inwestycja zakończona, mieszkanie gotowe do wydania.
Nowoczesna architektura, kompleksowo zagospodarowany teren osiedla, chodniki, niskie nasadzenia, plac zabaw dla najmłodszych.
Doskonała lokalizacja, spokojne sąsiedztwo, niska zabudowa, w pobliżu: szkoła ,żłobek, przedszkole, sklepy, blisko komunikacja miejska.
Zapraszam na prezentację
- powierzchnia: 60,7 m2
- piętro: 3 piętro
- liczba pięter w budynku: 3 piętrowy
- liczba pokoi: 3 pokoje
- liczba łazienek: 1 łazienka
- kuchnia: aneks
- dojazd: asfaltowy
- rok budowy: 2025
- ogrzewanie: miejskie
- numer oferty: ELT34324
- data dodania: 27 Styczeń 2026
- data ostatniej aktualizacji: 26 Styczeń 2026
Dane kontaktowe

LOKUM NIERUCHOMOŚCI
al. Wyzwolenia 4A/170-553 Szczecin
tel: +48 91 812 30 88
tel: +48 886 169 788
LOKUM NIERUCHOMOSCI
tel: +48 91 812 30 88
tel: +48 662 220 876
Osoba do kontaktu: LOKUM NIERUCHOMOSCI
Instrukcje kontaktowe: LOKUM NIERUCHOMOSCI telefoniczny/ osobisty / mail













