Mieszkanie 49,49 m², Mierzyn










mieszkanie • na sprzedaż • rynek pierwotny • Mierzyn
554 288 zł
• 49,49 m²
11 200 zł za m2
11 200 zł za m2
2 pokoje • 1 łazienka • parter • budynek 3 piętrowy • Rok budowy: 2026
Kontakt
Na sprzedaż dwupokojowe mieszkanie w standardzie deweloperskim w niskim budynku na Mierzynie.
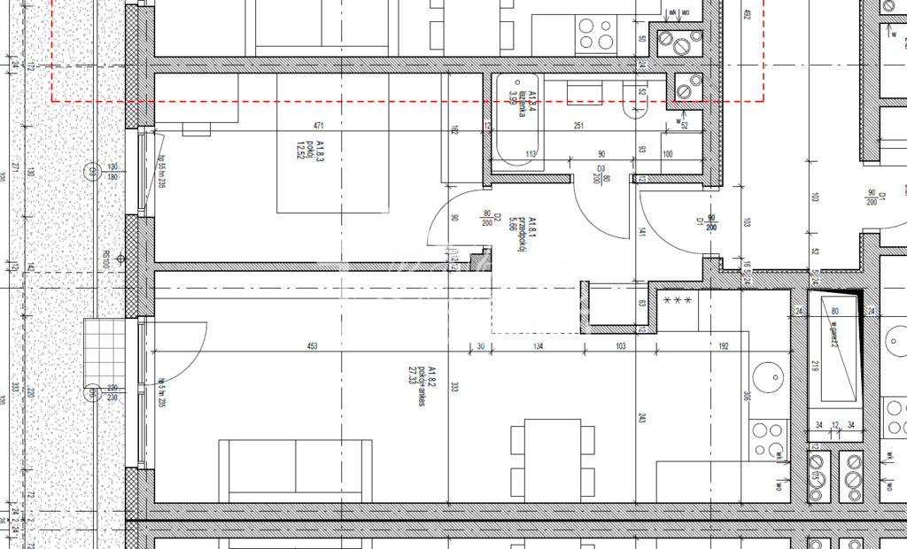
Mieszkanie z wyjściem na ogród o pow. ok 55 m2
Na powierzchnię użytkową 49,9 składają się:
salon z aneksem kuchennym o pow. 27m2 pokój o pow. 12,5m2łazienka z toaletą o pow. 3,99m2korytarz
W standardzie deweloperskim :
okna trzyszybowe tynki gipsowe, maszynowe rozprowadzona instalacja elektryczna, wodno-kanalizacyjna, grzewcza rozprowadzona instalacja telewizyjna i internetowa w sypialniach grzejniki panelowe w łazience grzejnik drabinkowy .
Do każdego mieszkania trzeba dokupić obligatoryjnie minimum jedno miejsce parkingowe znajdujące się w hali garażowej pod budynkiem ( winda zjeżdża na poziom: -1 ).
Budynek bez barier architektonicznych .
Ogrzewanie i ciepła woda z SEC'u.
Nowoczesna architektura, kompleksowo zagospodarowany teren osiedla, chodniki, niskie nasadzenia, plac zabaw dla najmłodszych.
Doskonała lokalizacja, spokojne sąsiedztwo, niska zabudowa, w pobliżu: szkoła ,żłobek, przedszkole, sklepy.
Zapraszam na prezentację
Mieszkanie z wyjściem na ogród o pow. ok 55 m2
Na powierzchnię użytkową 49,9 składają się:
salon z aneksem kuchennym o pow. 27m2 pokój o pow. 12,5m2łazienka z toaletą o pow. 3,99m2korytarz
W standardzie deweloperskim :
okna trzyszybowe tynki gipsowe, maszynowe rozprowadzona instalacja elektryczna, wodno-kanalizacyjna, grzewcza rozprowadzona instalacja telewizyjna i internetowa w sypialniach grzejniki panelowe w łazience grzejnik drabinkowy .
Do każdego mieszkania trzeba dokupić obligatoryjnie minimum jedno miejsce parkingowe znajdujące się w hali garażowej pod budynkiem ( winda zjeżdża na poziom: -1 ).
Budynek bez barier architektonicznych .
Ogrzewanie i ciepła woda z SEC'u.
Nowoczesna architektura, kompleksowo zagospodarowany teren osiedla, chodniki, niskie nasadzenia, plac zabaw dla najmłodszych.
Doskonała lokalizacja, spokojne sąsiedztwo, niska zabudowa, w pobliżu: szkoła ,żłobek, przedszkole, sklepy.
Zapraszam na prezentację
- powierzchnia: 49,49 m2
- piętro: parter
- liczba pięter w budynku: 3 piętrowy
- liczba pokoi: 2 pokoje
- liczba łazienek: 1 łazienka
- kuchnia: aneks
- rok budowy: 2026
- ogrzewanie: miejskie
- numer oferty: ELT34322
- data dodania: 27 Styczeń 2026
- data ostatniej aktualizacji: 26 Styczeń 2026
Dane kontaktowe

LOKUM NIERUCHOMOŚCI
al. Wyzwolenia 4A/170-553 Szczecin
tel: +48 91 812 30 88
tel: +48 886 169 788
LOKUM NIERUCHOMOSCI
tel: +48 91 812 30 88
tel: +48 662 220 876
Osoba do kontaktu: LOKUM NIERUCHOMOSCI
Instrukcje kontaktowe: LOKUM NIERUCHOMOSCI telefoniczny/ osobisty / mail













