Dom 110 m², Mierzyn












dom bliźniak • na sprzedaż • rynek pierwotny • Mierzyn
1 100 000 zł
• 110 m²
10 000 zł za m2
10 000 zł za m2
5 pokoi • 2 łazienki • parter • budynek 1 piętrowy • Rok budowy: 2022
Kontakt
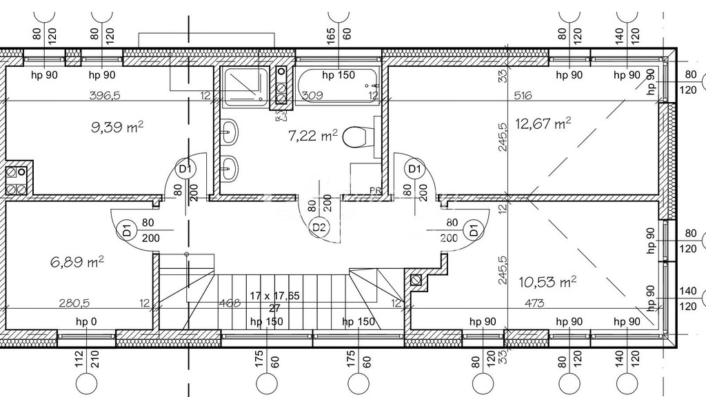
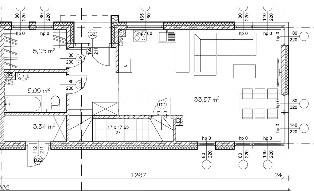
Nowo powstająca inwestycja mini osiedla 12 lokali mieszkalnych jednorodzinnych w zabudowie bliźniaczej, po 110 m powierzchni użytkowej na działkach po ok 350 m2. Ceny od 939 tys zł. Inwestycja zostanie oddana w stanie deweloperskim III kwartał 2023 rok. przeniesienie prawa własności IV kwartał 2023r. Domy wybudowane z bloczków sylikatowych, ocieplone styropianem 15 cm, okna trójszybowe, dachówka ceramiczna. CO i CW piec gazowy kondensacyjny ogrzewanie podłogowe w całości budynku. Dojazd do posesji drogą wewnętrzną wyłożoną kostką polbrukową. Do każdego lokalu przynależą po dwa miejsca postojowe. Chcąc zapoznać się z aktualną ofertą proszę o kontakt z maklerem prowadzącym.
- powierzchnia: 110 m2
- powierzchnia działki: 350 m2
- piętro: parter
- liczba pięter w budynku: 1 piętrowy
- liczba pokoi: 5 pokoi
- liczba łazienek: 2 łazienki
- kuchnia: aneks
- dojazd: utwardzony
- rok budowy: 2022
- numer oferty: MOJ21835
- data ostatniej aktualizacji: 30 Marzec 2026
Dane kontaktowe

LOKUM NIERUCHOMOŚCI
al. Wyzwolenia 4A/170-553 Szczecin
tel: +48 91 812 30 88
tel: +48 886 169 788

LOKUM NIERUCHOMOSCI
tel: +48 91 812 30 88
tel: +48 662 220 876
Osoba do kontaktu: LOKUM NIERUCHOMOSCI
Instrukcje kontaktowe: LOKUM NIERUCHOMOSCI telefoniczny/ osobisty / mail


















