Dom 164,48 m², Goleniów



















dom bliźniak • na sprzedaż • rynek pierwotny • Goleniów
995 000 zł
• 164,48 m²
6 049 zł za m2
6 049 zł za m2
5 pokoi • 1 łazienka • parter • budynek 1 piętrowy • Rok budowy: 2025
Kontakt
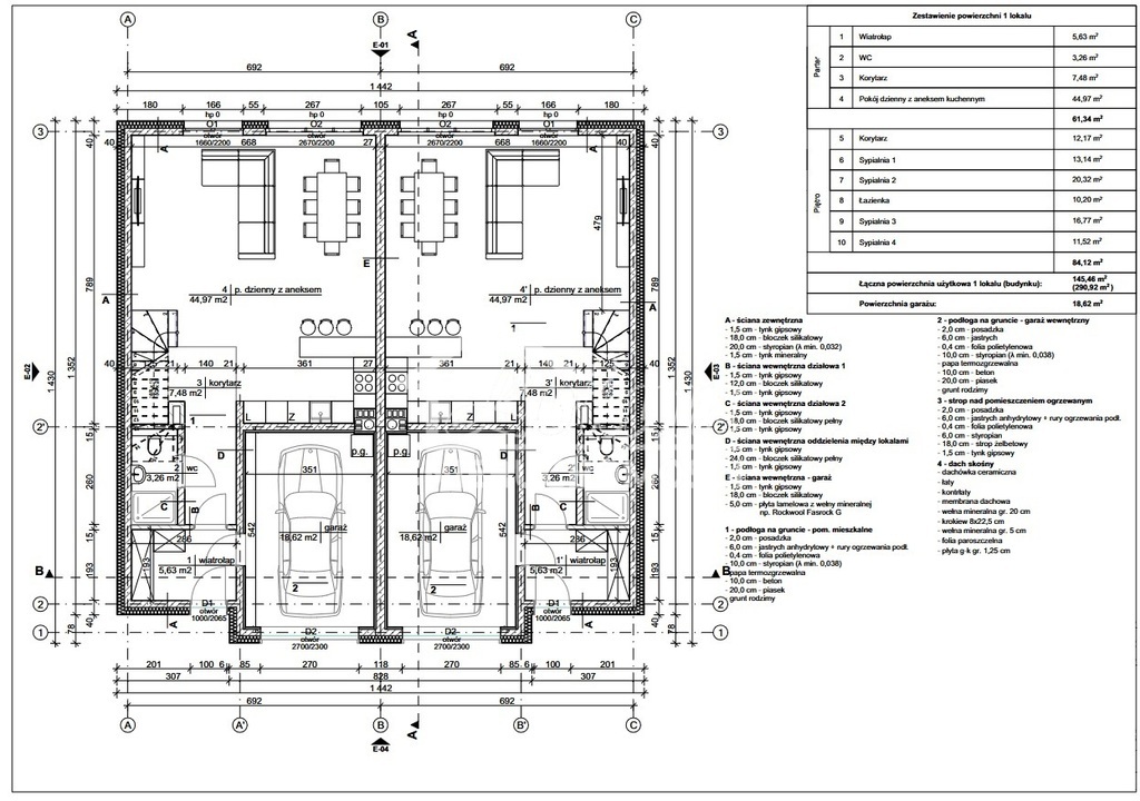
W ofercie dom wolnostojący dwulokalowy położony przy lesie w Goleniowie, działka 588m2. 30 minut od Szczecina, 2km od drogi S3. Łączna powierzchnia całkowita domu to 164m2,w tym:
Parter
- Wiatrołap - 5,63 m2
- WC - 3,26 m2
- Korytarz - 7,48 m2
- Pokój dzienny z aneksem kuchennym - 44,97 m2
Piętro I:
- Sypialnia 1 - 13,14 m2
- Łazienka - 10,20 m2
- Sypialnia 2 - 20,32 m2
- Sypialnia 3 - 16,77 m2
- Sypialnia 4 - 11,52 m2
Łącznie: 145,46 m2 + Garaż: 18,62 m2.
Budynek został wykonany z wysokiej jakości materiałów budowlanych i wykończeniowych
We wszystkich pokojach i garażu jest zastosowane ogrzewanie podłogowe, do ogrzewania jest zastosowany piec gazowy wraz z zasobnikiem 120 l, ponadto jest wyprowadzona instalacja pod pompę ciepła i panele fotowoltaiczne
Ponadto zamontowano okna Gelan trzyszybowe wraz z elektrycznymi roletami, brama garażowa wraz z napędem elektrycznym firmy Wiśniowski oraz drzwi wejściowe firmy ERKADO Thermo 64, wideodomofon.
Konstrukcja:
ściana zewnętrzna
- 1,5 cm - tynk gipsowy
- 24,0 cm - bloczek silikatowy
- 20,0 cm - styropian (λ min. 0,032)
- 1,5 cm - tynk mineralny
dach:
- dachówka ceramiczna
- łaty
- kontrłaty
- membrana dachowa
- wełna mineralna gr. 20 cm
- krokiew 8x22,5 cm
- wełna mineralna gr. 5 cm
- folia paroszczelna
- płyta g-k gr. 1,25 cm
Teren całkowicie ogrodzony. Bardzo dobry dojazd drogą asfaltową (droga gminna), w pobliżu liczne sklepy i lokale użytkowe. Klucze w biurze. Zapraszam do zapoznania się z ofertą osobiście. Podana cena jest ceną brutto.
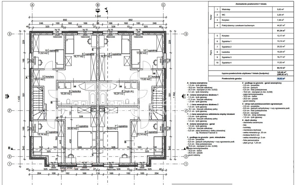
Parter
- Wiatrołap - 5,63 m2
- WC - 3,26 m2
- Korytarz - 7,48 m2
- Pokój dzienny z aneksem kuchennym - 44,97 m2
Piętro I:
- Sypialnia 1 - 13,14 m2
- Łazienka - 10,20 m2
- Sypialnia 2 - 20,32 m2
- Sypialnia 3 - 16,77 m2
- Sypialnia 4 - 11,52 m2
Łącznie: 145,46 m2 + Garaż: 18,62 m2.
Budynek został wykonany z wysokiej jakości materiałów budowlanych i wykończeniowych
We wszystkich pokojach i garażu jest zastosowane ogrzewanie podłogowe, do ogrzewania jest zastosowany piec gazowy wraz z zasobnikiem 120 l, ponadto jest wyprowadzona instalacja pod pompę ciepła i panele fotowoltaiczne
Ponadto zamontowano okna Gelan trzyszybowe wraz z elektrycznymi roletami, brama garażowa wraz z napędem elektrycznym firmy Wiśniowski oraz drzwi wejściowe firmy ERKADO Thermo 64, wideodomofon.
Konstrukcja:
ściana zewnętrzna
- 1,5 cm - tynk gipsowy
- 24,0 cm - bloczek silikatowy
- 20,0 cm - styropian (λ min. 0,032)
- 1,5 cm - tynk mineralny
dach:
- dachówka ceramiczna
- łaty
- kontrłaty
- membrana dachowa
- wełna mineralna gr. 20 cm
- krokiew 8x22,5 cm
- wełna mineralna gr. 5 cm
- folia paroszczelna
- płyta g-k gr. 1,25 cm
Teren całkowicie ogrodzony. Bardzo dobry dojazd drogą asfaltową (droga gminna), w pobliżu liczne sklepy i lokale użytkowe. Klucze w biurze. Zapraszam do zapoznania się z ofertą osobiście. Podana cena jest ceną brutto.
- powierzchnia: 164,48 m2
- powierzchnia działki: 588 m2
- piętro: parter
- liczba pięter w budynku: 1 piętrowy
- liczba pokoi: 5 pokoi
- liczba łazienek: 1 łazienka
- kuchnia: aneks
- ogrodzenie: ogrodzona
- rok budowy: 2025
- numer oferty: CIT25295
- data dodania: 28 Kwiecień 2026
- data ostatniej aktualizacji: 2 Kwiecień 2026
Dane kontaktowe

LOKUM NIERUCHOMOŚCI
al. Wyzwolenia 4A/170-553 Szczecin
tel: +48 91 812 30 88
tel: +48 886 169 788

LOKUM NIERUCHOMOSCI
tel: +48 91 812 30 88
tel: +48 662 220 876
Osoba do kontaktu: LOKUM NIERUCHOMOSCI
Instrukcje kontaktowe: LOKUM NIERUCHOMOSCI telefoniczny/ osobisty / mail













