Dom 117 m², Dołuje






dom bliźniak • na sprzedaż • rynek pierwotny • Dołuje
929 000 zł
• 117 m²
7 940 zł za m2
7 940 zł za m2
5 pokoi • 2 łazienki • parter • budynek 1 piętrowy • Rok budowy: 2025
Kontakt
Oferujemy do sprzedaży atrakcyjne bliźniaki usytuowane w Dołujach, w ładnym, zielonym miejscu niedaleko lasu.
Inwestycja przewiduje trzy domy dwulokalowe ze sporymi działkami różnej wielkości (od 485m2 do 344m2).
Budynki oddawane będą w trzecim kwartale 2026r. w standardzie deweloperskim.
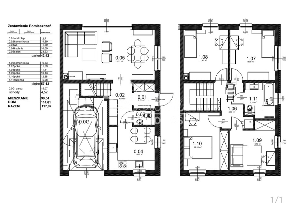
Powierzchnia całkowita budynku to 117 m2 łącznie z garażem.
Zestawienie powierzchni:
Parter 42.42m2 :
- Salon 23.23m2 ,
- kuchnia 10,09m2
- wiatrołap 2,71m2,
- komunikacja 4,89m2,
- WC 1,50m2,
Piętro 57.12m2:
- pokój 11,5m29
- pokój 11,41m2,
- pokój 10,13m2,
- pokój 12,38m2,
- łazienka 5,28m2
- komunikacja 6,03m2
Polecam ze względu na uroczą lokalizację, cenę i jakość wykończenia.
Zapraszam na prezentację
Inwestycja przewiduje trzy domy dwulokalowe ze sporymi działkami różnej wielkości (od 485m2 do 344m2).
Budynki oddawane będą w trzecim kwartale 2026r. w standardzie deweloperskim.
Powierzchnia całkowita budynku to 117 m2 łącznie z garażem.
Zestawienie powierzchni:
Parter 42.42m2 :
- Salon 23.23m2 ,
- kuchnia 10,09m2
- wiatrołap 2,71m2,
- komunikacja 4,89m2,
- WC 1,50m2,
Piętro 57.12m2:
- pokój 11,5m29
- pokój 11,41m2,
- pokój 10,13m2,
- pokój 12,38m2,
- łazienka 5,28m2
- komunikacja 6,03m2
Polecam ze względu na uroczą lokalizację, cenę i jakość wykończenia.
Zapraszam na prezentację
- powierzchnia: 117 m2
- powierzchnia działki: 485 m2
- piętro: parter
- liczba pięter w budynku: 1 piętrowy
- liczba pokoi: 5 pokoi
- liczba łazienek: 2 łazienki
- kuchnia: zamknięta
- dojazd: asfaltowy
- rok budowy: 2025
- numer oferty: BRW21260
- data ostatniej aktualizacji: 21 Styczeń 2026
Dane kontaktowe

LOKUM NIERUCHOMOŚCI
al. Wyzwolenia 4A/170-553 Szczecin
tel: +48 91 812 30 88
tel: +48 886 169 788
LOKUM NIERUCHOMOSCI
tel: +48 91 812 30 88
tel: +48 662 220 876
Osoba do kontaktu: LOKUM NIERUCHOMOSCI
Instrukcje kontaktowe: LOKUM NIERUCHOMOSCI telefoniczny/ osobisty / mail













