Działka budowlana 2,73 ha, Bielkowo

działka budowlana • na sprzedaż • rynek wtórny • Bielkowo
3 142 950 zł
• 27330 m²
115 zł za m2
115 zł za m2
Kontakt
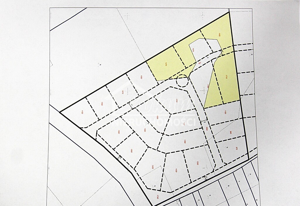
Ofertą jest sprzedaż działek w miejscowości Bielkowo, gm. Kobylanka.
Łączna powierzchnia działek wraz z pełną infrastrukturą drogową wynosi 32 963 m².
Działki idealnie nadają się pod zabudowę jednorodzinną lub przemysłowo-usługową, zgodnie z kierunkami wyznaczonymi w Studium Uwarunkowań i Kierunków Zagospodarowania Przestrzennego.
Doskonała lokalizacja - tylko 5 km od węzła Motaniec (S10)
Parametry zabudowy: Powierzchnia zabudowy: do 17% powierzchni działki
Powierzchnia biologicznie czynna: minimum 60%
Dojazd: utwardzona droga wewnętrzna
Media: woda, prąd, gaz - w drodze przy działkach
Kanalizacja: planowana realizacja do połowy przyszłego roku
Lokalizacja i atuty: 5 km do węzła Motaniec (droga ekspresowa S10) - szybki dojazd do Szczecina (ok. 30 min) i Stargardu (ok. 10 min)
3 km do Jeziora Miedwie - jedno z największych jezior w Polsce, idealne do rekreacji
Cicha, spokojna okolica - atrakcyjna zarówno dla inwestora deweloperskiego, jak i firm poszukujących terenów pod działalność
Atuty inwestycyjne:
Możliwość realizacji osiedla domów jednorodzinnych lub zakładów usługowych/magazynowych
Pełna infrastruktura drogowa i dostępność mediów
Atrakcyjne warunki zabudowy
Bliskość głównych arterii komunikacyjnych
Zainteresowanych inwestorów zapraszam do kontaktu po więcej szczegółów oraz dokumentację.
Możliwość oględzin w terenie po wcześniejszym umówieniu.
Łączna powierzchnia działek wraz z pełną infrastrukturą drogową wynosi 32 963 m².
Działki idealnie nadają się pod zabudowę jednorodzinną lub przemysłowo-usługową, zgodnie z kierunkami wyznaczonymi w Studium Uwarunkowań i Kierunków Zagospodarowania Przestrzennego.
Doskonała lokalizacja - tylko 5 km od węzła Motaniec (S10)
Parametry zabudowy: Powierzchnia zabudowy: do 17% powierzchni działki
Powierzchnia biologicznie czynna: minimum 60%
Dojazd: utwardzona droga wewnętrzna
Media: woda, prąd, gaz - w drodze przy działkach
Kanalizacja: planowana realizacja do połowy przyszłego roku
Lokalizacja i atuty: 5 km do węzła Motaniec (droga ekspresowa S10) - szybki dojazd do Szczecina (ok. 30 min) i Stargardu (ok. 10 min)
3 km do Jeziora Miedwie - jedno z największych jezior w Polsce, idealne do rekreacji
Cicha, spokojna okolica - atrakcyjna zarówno dla inwestora deweloperskiego, jak i firm poszukujących terenów pod działalność
Atuty inwestycyjne:
Możliwość realizacji osiedla domów jednorodzinnych lub zakładów usługowych/magazynowych
Pełna infrastruktura drogowa i dostępność mediów
Atrakcyjne warunki zabudowy
Bliskość głównych arterii komunikacyjnych
Zainteresowanych inwestorów zapraszam do kontaktu po więcej szczegółów oraz dokumentację.
Możliwość oględzin w terenie po wcześniejszym umówieniu.
- powierzchnia: 27330 m2
- powierzchnia działki: 27330 m2
- ogrodzenie: nie ogrodzona
- dojazd: asfaltowy
- numer oferty: HES28859
- data ostatniej aktualizacji: 16 Styczeń 2026
Dane kontaktowe

LOKUM NIERUCHOMOŚCI
al. Wyzwolenia 4A/170-553 Szczecin
tel: +48 91 812 30 88
tel: +48 886 169 788
LOKUM NIERUCHOMOSCI
tel: +48 91 812 30 88
tel: +48 662 220 876
Osoba do kontaktu: LOKUM NIERUCHOMOSCI
Instrukcje kontaktowe: LOKUM NIERUCHOMOSCI telefoniczny/ osobisty / mail





