Dom 180,6 m², Bezrzecze



dom w zabudowie szeregowej • na sprzedaż • rynek pierwotny • Bezrzecze
1 185 000 zł
• 180,6 m²
6 561 zł za m2
6 561 zł za m2
6 pokoi • 1 łazienka • parter • budynek 1 piętrowy • Rok budowy: 2024
Kontakt
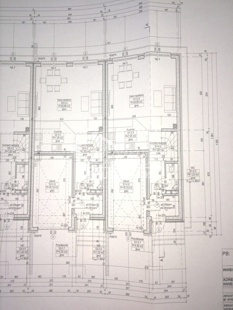
Do sprzedaży segment szeregowca skrajnego, zlokalizowany w rewelacyjnym punkcie Bezrzecza. Powierzchnia (162m2 użytkowej, 180m2 całkowita) na którą składa się:
Parter- przedsionek, korytarz, kuchnia-7,25m2, salon z jadalnią-27m2, wc-1,8m2, garaż 16,74m2.
Piętro- korytarz, łazienka-6,3m2, pomieszczenie gospodarcze-2,3m2, oraz 3 pokoje o powierzchni 14m2 każdy
Poddasze-hol-23m2, łazienka-5,7m2, pokój-23m2.
Ściany zewnętrzne murowane z bloczków piaskowo-wapiennych grubości 24 cm., ściany wewnętrzne: nośne o grubości 18 cm, a działowe o grubości 12 cm. Podłoga na gruncie z warstwami izolacji przeciwwilgociowej i termicznej w systemie izolacji lekkiej, strop nad parterem i nad piętrem-gęstożebrowy z elementów prefabrykowanych. Ocieplenie styropianem grubości 15 cm, a od pewnej wysokości wełną mineralną. Dach kryty dachówką, piec gazowy dwuobiegowy, ogrzewanie podłogowe.
Podana cena jest ceną brutto, kupujący nie płaci pcc!
Parter- przedsionek, korytarz, kuchnia-7,25m2, salon z jadalnią-27m2, wc-1,8m2, garaż 16,74m2.
Piętro- korytarz, łazienka-6,3m2, pomieszczenie gospodarcze-2,3m2, oraz 3 pokoje o powierzchni 14m2 każdy
Poddasze-hol-23m2, łazienka-5,7m2, pokój-23m2.
Ściany zewnętrzne murowane z bloczków piaskowo-wapiennych grubości 24 cm., ściany wewnętrzne: nośne o grubości 18 cm, a działowe o grubości 12 cm. Podłoga na gruncie z warstwami izolacji przeciwwilgociowej i termicznej w systemie izolacji lekkiej, strop nad parterem i nad piętrem-gęstożebrowy z elementów prefabrykowanych. Ocieplenie styropianem grubości 15 cm, a od pewnej wysokości wełną mineralną. Dach kryty dachówką, piec gazowy dwuobiegowy, ogrzewanie podłogowe.
Podana cena jest ceną brutto, kupujący nie płaci pcc!
- powierzchnia: 180,6 m2
- powierzchnia działki: 250 m2
- piętro: parter
- liczba pięter w budynku: 1 piętrowy
- liczba pokoi: 6 pokoi
- liczba łazienek: 1 łazienka
- kuchnia: aneks
- dojazd: asfaltowy
- rok budowy: 2024
- ogrzewanie: gazowe
- numer oferty: SCN23003
- data dodania: 28 Kwiecień 2026
- data ostatniej aktualizacji: 22 Kwiecień 2026
Dane kontaktowe

LOKUM NIERUCHOMOŚCI
al. Wyzwolenia 4A/170-553 Szczecin
tel: +48 91 812 30 88
tel: +48 886 169 788

LOKUM NIERUCHOMOSCI
tel: +48 91 812 30 88
tel: +48 662 220 876
Osoba do kontaktu: LOKUM NIERUCHOMOSCI
Instrukcje kontaktowe: LOKUM NIERUCHOMOSCI telefoniczny/ osobisty / mail












