Dom 128 m², Bezrzecze














dom bliźniak • na sprzedaż • rynek pierwotny • Bezrzecze
1 250 000 zł
• 128 m²
9 766 zł za m2
9 766 zł za m2
5 pokoi • 1 łazienka • parter • budynek 1 piętrowy • Rok budowy: 2026
Kontakt
Na sprzedaż nowoczesny, komfortowy bliźniak w stanie deweloperskim na Bezrzeczu.
Do każdego lokalu przynależą dwa miejsca parkingowe ( możliwość zrobienia wiaty, duża odległość między budynkami ).
Wszystkie media gminne : prąd , gaz, kanalizacja sanitarna i kanalizacja deszczowa .
Standard deweloperski :
- ogrzewanie podłogowe na parterze i na piętrze .
- ściany zewnętrzne porotherm 25 cm + styropian grafitowy 15 cm + tynk.
- okna PCV trzyszybowe, w salonie drzwi tarasowe przesuwne.
- ściana pomiędzy lokalami silka akustyczna 24 cm Klasa 20.
- piec gazowy, SAUNIER DUVAL - THELIA CONDENS.
- w stropie przygotowany otwór - możliwość montażu kominka .
- strop poddasza, ocieplony wełną mineralną 20cm.
- dach docieplony pianą PUR.
- instalacja wodno-kanalizacyjna, elektryczna.
- instalacja TV i internetowa.
- tynki maszynowe gipsowe.
- Posadzki betonowe.
- dachówka BRAS CELTYCKA Cisar, kolorgrafitowy.
- Rynny i rury spustowe.
- Obróbki kominiarskie.
- drzwi wejściowe PANTOR 72 mm ciepłe.
Zagospodarowanie terenu:
- miejsca parkingowe i dojście do lokalu z kostki brukowej
- Ogrodzenie systemowe panelowe ( bez frontu )
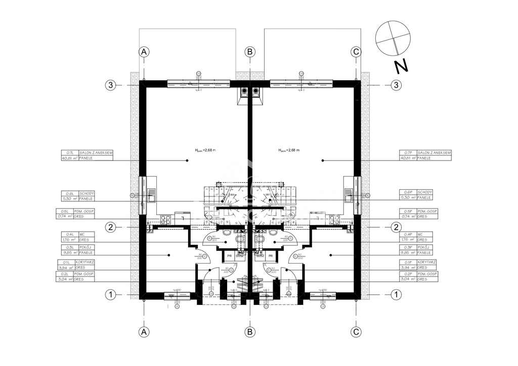
Na powierzchnię 128m2 składają się na parterze :
- salon z aneksem o pow. 40,81m2
- pokój o pow. 9,85 m2 / możliwość zrobienia osobnej kuchni.
- toaleta o pow. 1,76 m2
- pom. gospodarcze o pow. 3 m2
- pom. gospodarcze o pow. 0,74 m2
- schody o pow. 5,3 m2
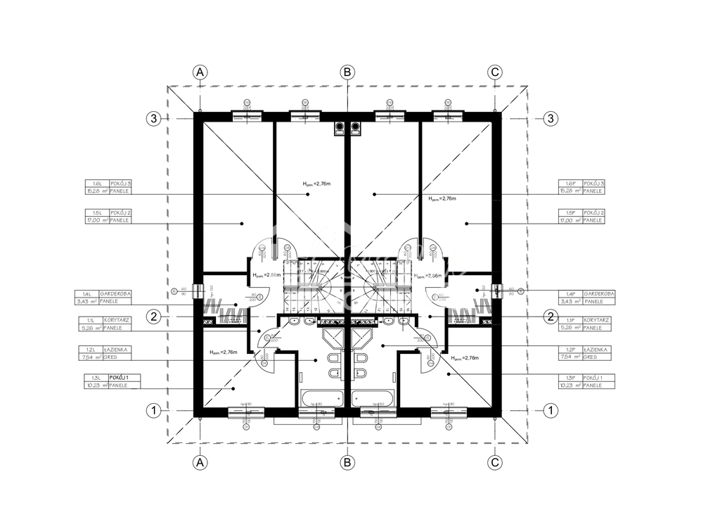
Piętro ( bez skosów ) :
- pokój o pow. 17 m2
- pokój o pow. 15,28 m2
- pokój o pow. 10,23 m2
- garderoba o pow. 3,43 m2
- łazienka razem z toaletą o pow, 7,5m2
- korytarz o pow. 5,26 m2
Doskonałalokalizacja, nowoczesnydom w zabudowie bliźniaczej w cichym kameralnym miejscuna Bezrzeczu.
Kupujący zwolniony z opłaty PCC, 2 % do Urzędu Skarbowego.
Polecam i zapraszam na prezentację
- powierzchnia: 128 m2
- powierzchnia działki: 400 m2
- piętro: parter
- liczba pięter w budynku: 1 piętrowy
- liczba pokoi: 5 pokoi
- liczba łazienek: 1 łazienka
- kuchnia: aneks
- ogrodzenie: ogrodzona
- dojazd: asfaltowy
- rok budowy: 2026
- ogrzewanie: gazowe
- numer oferty: ELT34456
- data dodania: 28 Kwiecień 2026
- data ostatniej aktualizacji: 24 Kwiecień 2026
Dane kontaktowe

LOKUM NIERUCHOMOŚCI
al. Wyzwolenia 4A/170-553 Szczecin
tel: +48 91 812 30 88
tel: +48 886 169 788

LOKUM NIERUCHOMOSCI
tel: +48 91 812 30 88
tel: +48 662 220 876
Osoba do kontaktu: LOKUM NIERUCHOMOSCI
Instrukcje kontaktowe: LOKUM NIERUCHOMOSCI telefoniczny/ osobisty / mail













